Residential
More from realestate.co.nz:
Agents News

55/57 Raurimu Road, National Park, Ruapehu

Your Raurimu Retreat Awaits

dollar

Asking Price $650,000

House
House
Bedroom
4
Bathroom
2
Floor area
205m2
Land area
1518m2
On this page:

Property details

Listing # ARZ9405 | Listed on 2 December 2024

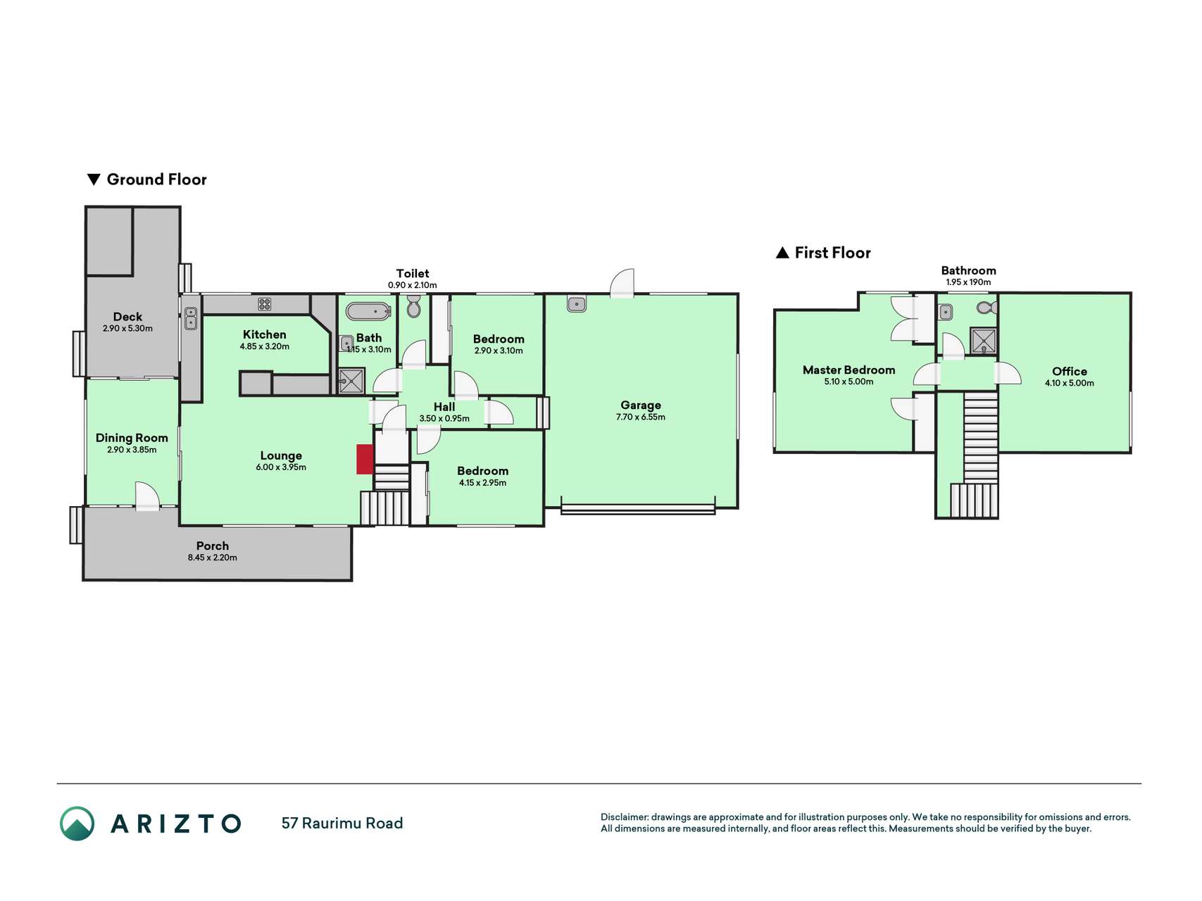
This charming family home in Raurimu offers a thoughtful blend of stylised flair and country warmth, perfect for those seeking a lifestyle that’s both relaxed and refined. With four spacious bedrooms, two bathrooms, and open-plan living, the home is designed for comfort and connection. A bright kitchen anchors the living space, flowing seamlessly to a covered deck overlooking well-maintained grounds—ideal for entertaining or unwinding.

The entire home has recently been retrofitted with Xcel clear Low E double glazing—an investment in warmth, efficiency, and long-term comfort. This upgrade enhances insulation, reduces noise, and helps maintain a consistent indoor climate year-round.

A wood burner in the lounge provides cosy, efficient heating throughout the home, complemented by large woodsheds stocked for winter.

Set across two separate titles, the landscaped gardens offer room to roam, play, or simply enjoy the outdoors. Prefer a smaller footprint? The option to sell off one section provides flexibility to suit your needs.

Practical features include an oversized internal garage with laundry and storage, plus ample outdoor space for recreation or relaxation.

The property enjoys an outlook toward the historic Raurimu Spiral, a quiet nod to the area’s rich railway heritage. Whether you're after a peaceful retreat or a base for adventure, this home offers a sanctuary with character.

Raurimu is more than just a scenic village, it’s a gateway to outdoor exploration. With nearby attractions like the Blue Mountain Adventure Centre, Spiral Lookout, and Ruapehu Adventure Rides, and Mount Ruapehu just a short drive away, nature and adventure are always within reach.

The vendors are motivated and ready to welcome new owners who will appreciate the lifestyle on offer. If you’ve been searching for a home with space, charm, and flexibility, this is your opportunity.

Schedule a viewing today to truly appreciate all that this exceptional property has to offer.

Combined RV: $622,000

Your notes
Add notes for your personal reference. This can only be seen by you.

Additional features

Other park
2 other parks
$
$
% p.a.
years
$0 per week
Contact the agent
Name  (required)
Email  (required)
Phone
I'd like to enquire about:
Your message
A young family with pets illustration