Residential
More from realestate.co.nz:
Agents News

10 Ara O Paki Paki Street, Wakefield, Tasman

Nearing Completion! Act Fast!

dollar

Enquiries Over $949,000

House
House
Bedroom
3
Bathroom
2
Floor area
160m2
Land area
710m2
Garage
2
On this page:

Property details

Listing # RC7862 | Listed on 9 December 2024

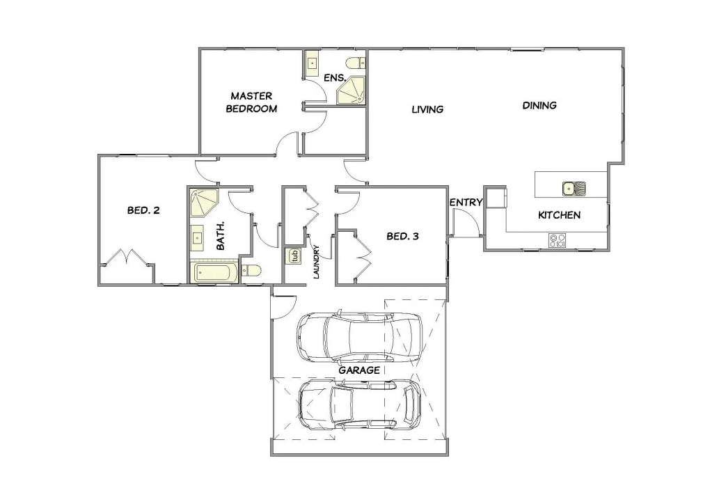
Introducing an exceptional opportunity to secure a brand-new, turn key three-bedroom, two-bathroom home in Wakefield. Nearing completion, this thoughtfully designed home offers 160 square meters of modern living on a spacious 710 square meter section - perfect for families, professionals, or anyone wanting space and comfort.

Wakefield is known for its peaceful rural charm and welcoming community, while still offering great amenities. Enjoy parks, walking trails, and the vibrant Wakefield Village with its cafés and local shops. Families love the area for its excellent schooling and outdoor lifestyle, with rivers, swimming spots, and beautiful countryside nearby.

Once complete, the home will feature a stylish, well-appointed kitchen flowing through to open-plan dining and living spaces - ideal for entertaining and everyday living. Three generous bedrooms provide plenty of room for all, and two modern bathrooms complete the practical layout.

With completion just around the corner, you'll soon be able to walk in, unpack, and enjoy a fresh, modern home in a highly sought-after location.
Contact Sophie today for more information or to arrange a viewing.

Your notes
Add notes for your personal reference. This can only be seen by you.

Additional features

Water closet
2 Separate toilets
Rates
Rates: $3,181.91 per annum

Schools and childcare in the area

$
$
% p.a.
years
$0 per week
Contact the agent
Name  (required)
Email  (required)
Phone
I'd like to enquire about:
Your message
A young family with pets illustration