Commercial
More from realestate.co.nz:
Agents News

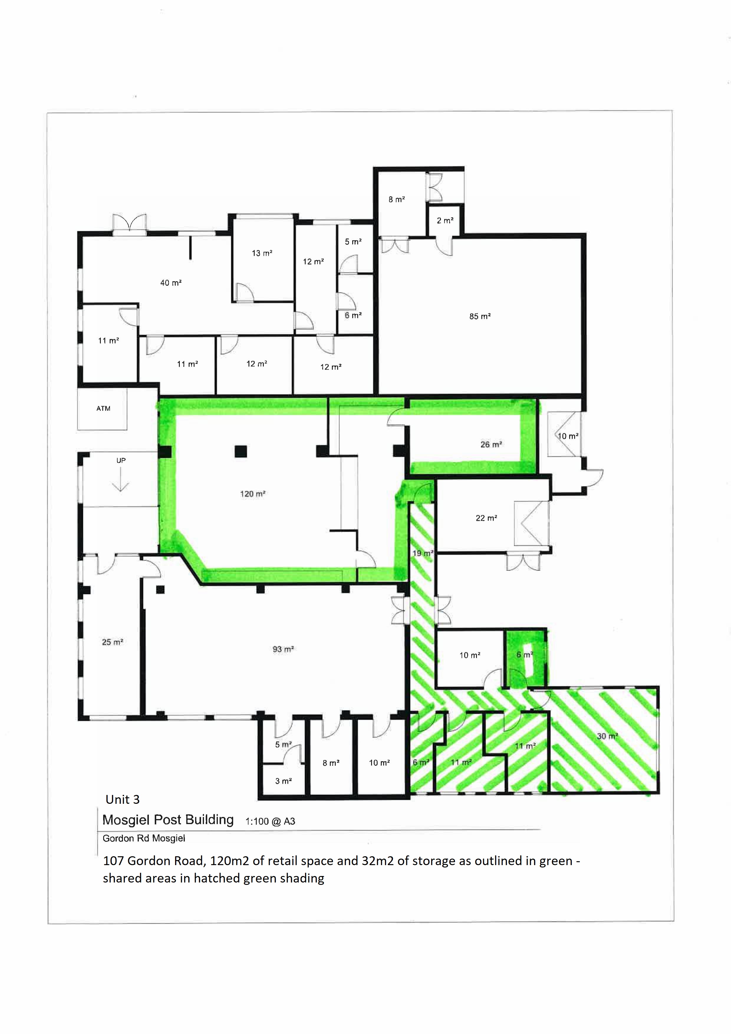
Retail/Offices and Storage Mosgiel 152m

Unit 3/107 Gordon Road, Mosgiel

Retail Premises
dollar

$28,800 Plus GST (if any)

Floor area
152m2
On this page:

Map

Property details

Listing # L32068091 | Listed on 17 December 2024

A large retail/service retail or office space of 120m2 is now available for lease along with a large storage area of 32m2 fronting Gordon Road, Mosgiel.
Accessed from Gordon Road the open plan area includes a meeting room, as well as access to shared bathroom and kitchen facilities. Would suit a retail operation or a service-based entity looking for a presence in Mosgiel. Rear parking is available by negotiation. Formerly NZ Post front counter operation and storage, the large send boxes at the frontal area have been decommissioned and are being removed - asking rental $28,800 plus a share of opex plus GST. Enquire now to view.

Your notes
Add notes for your personal reference. This can only be seen by you.
Contact the agent
Name  (required)
Email  (required)
Phone  (required)
I'd like to enquire about:
Your message
A young family with pets illustration