Residential
More from realestate.co.nz:
Agents News

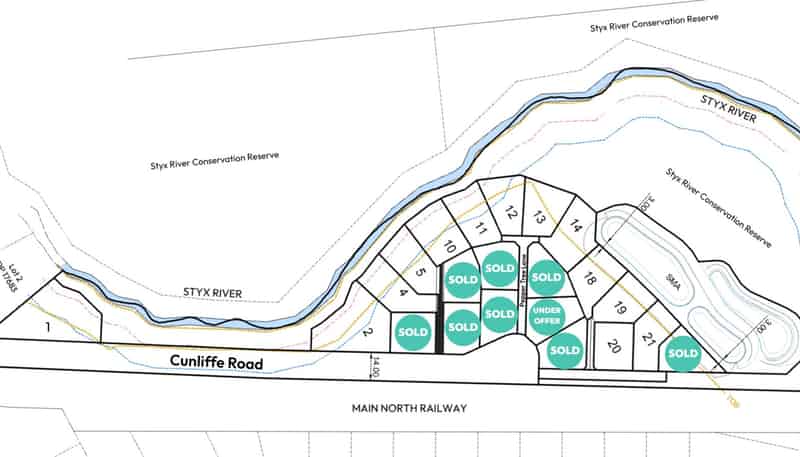
Lot Lots 1-22, 15 Cunliffe Road, Redwood, Christchurch City

Titled Sections with River Views

dollar

Negotiation

Section
Section
Title type
Freehold
On this page:

Property details

Listing # TPMM5583 | Listed on 27 June 2025

Harakeke Estates, an exclusive development of 22 premium sections situated at 15 Cunliffe Road, Redwood. Looking directly out onto the newly regenerated Styx River Conservation Reserve, build your dream home with a view.

Northwood Supa Centre, Redwood Village and Northlands Mall are just a stones throw away and transport is a breeze with Main North Road and SH1 so close by.

With titles issued, now is the time to secure your slice of this growing and vibrant community.

Only 14 sections still available and interest is high so don’t miss your chance to be part of this exceptional development. Contact me today for more information.

Lot 1 - 1,080 m2 $475,000
Lot 2 - 923 m2 $496,000
Lot 3 - SOLD
Lot 4 - 582 m2 $449,000
Lot 5 - 586 m2 $449,000
Lot 6 - SOLD
Lot 7 - SOLD
Lot 8 - SOLD
Lot 9 - SOLD
Lot 10 - 619 m2 $449,000
Lot 11 - 528 m2 $449,000
Lot 12 - 493 m2 $449,000
Lot 13 - 524 m2 $525,000
Lot 14 - 598 m2 $549,000
Lot 15 - SOLD
Lot 16 - 490 m2 $398,000
Lot 17 - SOLD
Lot 18 - 584 m2 $549,000
Lot 19 - 542 m2 $498,000
Lot 20 - 453 m2 $398,000
Lot 21 - 494m2 $469,000
Lot 22 - SOLD

Your notes
Add notes for your personal reference. This can only be seen by you.

Schools and childcare in the area

$
$
% p.a.
years
$0 per week
Contact the agent
Name  (required)
Email  (required)
Phone
I'd like to enquire about:
Your message
A young family with pets illustration