Commercial
More from realestate.co.nz:
Agents News

Epsom Warehouse!

8 Lion Place, Epsom

Warehouse
dollar

Negotiation

Floor area
531m2
On this page:

Map

Property details

Listing # FRA105651 | Listed on 11 August
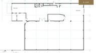
  • 531sqm high stud warehouse
  • Includes 5 on-site car parks
  • Roller door access + loading dock
  • Available now – move in ready


Functional Warehouse with Excellent Access

This 531sqm high stud warehouse offers an excellent opportunity for businesses seeking functional industrial space with flexibility. The open-plan layout combines warehouse and office areas, creating a seamless workflow environment ideal for logistics, manufacturing, or trade operations.

Key features include roller door access, a separate loading dock for efficient goods handling, and on-site shower and toilet facilities for staff convenience. With five dedicated car parks included in the rental, your team and clients will benefit from easy access and parking on site.

Positioned in a strategic industrial hub with strong transport links, this tenancy is available now, ready for immediate occupation.

Enquire today to arrange an inspection or secure your new operational base.

At Frank we take a proactive approach with tenants, and by understanding your needs provide a range of suitable commercial property options.

We have 100's of listings across all categories, and we would enjoy the opportunity to work with you to find the property solution best suited for you and your business.

Connect with us:
Facebook: facebook.com/frankcommercial
Instagram: instagram.com/frank_commercial
LinkedIn: nz.linkedin.com/company/frankcommercial

Your notes
Add notes for your personal reference. This can only be seen by you.
Contact the agent
Name  (required)
Email  (required)
Phone
I'd like to enquire about:
Your message
A young family with pets illustration