Residential
More from realestate.co.nz:
Agents News

Lot 3/238 Park Road, Hokowhitu, Palmerston North City

Under Construction 2025!

dollar

$1,400,000

House
House
Bedroom
4
Bathroom
1
Floor area
197m2
Land area
495m2
Title type
Freehold
Garage
2
Ensuite
1 ensuite
New build
New build
On this page:

Property details

Listing # BU196603 | Listed on 26 August

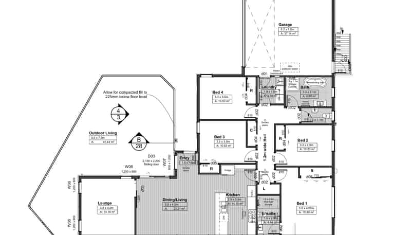
In hot demand! Single level, approximately 197m2 home under construction in Hokowhitu! You'll love everything about it. Plaster and Linea weatherboard exterior, aluminium double glazing, ducted heat pump and all the modern conveniences. Offering a spacious, open plan living area and separate lounge. Four bedrooms, two bathrooms (master with ensuite), powder room, separate laundry, ample storage and double internal access garage. Positioned down a rear section, this property enjoys a quiet setting and epitomises what low maintenance living represents.

Your notes
Add notes for your personal reference. This can only be seen by you.

Additional features

Roofing: Color Tile
Exterior Cladding: Linea Weatherboard, Plaster (Cavity)
Exterior Joinery: Aluminium, Double Glazing
Lot Features: Right of Way, Rear Section
Rooms: Open Plan Kitchen/Dining/Family, Separate Lounge, Separate Laundry
Internal Features: Ducted Heatpump

Schools and childcare in the area

$
$
% p.a.
years
$0 per week
Contact the agent
Name  (required)
Email  (required)
Phone
I'd like to enquire about:
Your message
A young family with pets illustration