Commercial
More from realestate.co.nz:
Agents News

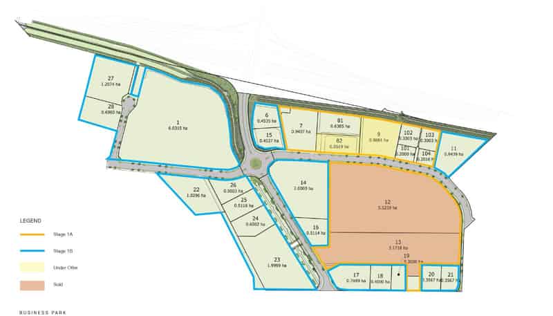
Industrial Land 6.0315 hectares (Lot 1) Rangiuru

Industrial Land 6.0315 hectares (Lot 1) Rangiuru B, Rangiuru

Industrial Land
dollar

$34,681,125 Plus GST (if any)

Land area
6.03ha
On this page:

Map

Property details

Listing # TGC214184 | Listed on 1 October 2025

The Rangiuru Business Park is a major industrial development located near Te Puke in the Bay of Plenty, New Zealand. Spanning 148 hectares across four stages, it is set to become the region's largest consented greenfield industrial zone.

•Total area: 6.0315ha
•Stage 1, covering approximately 14 hectares, is currently selling, with titles expected by late 2025

The development includes significant infrastructure, such as a $60 million motorway interchange connecting the park to State Highway 2, co-funded by Quayside Holdings and the Provincial Growth Fund. The park incorporates sustainable design elements, including a 48-hectare stormwater pond and wetland, and collaborates with local iwi to ensure cultural considerations are met.

A full Information Memorandum is available on request.

Contact the agents for more information.

Your notes
Add notes for your personal reference. This can only be seen by you.
Contact the agent
Name  (required)
Email  (required)
Phone  (required)
I'd like to enquire about:
Your message

By continuing, you agree to our terms of use and privacy policy.

A young family with pets illustration