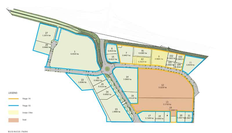
The Rangiuru Business Park is a major industrial development located near Te Puke in the Bay of Plenty, New Zealand. Spanning 148 hectares across four stages, it is set to become the region's largest consented greenfield industrial zone.
•Total area: 0.2016ha
•Stage 1, covering approximately 14 hectares, is currently selling, with titles expected by late 2025
The development includes significant infrastructure, such as a $60 million motorway interchange connecting the park to State Highway 2, co-funded by Quayside Holdings and the Provincial Growth Fund. The park incorporates sustainable design elements, including a 48-hectare stormwater pond and wetland, and collaborates with local iwi to ensure cultural considerations are met.
A full Information Memorandum is available on request.
Contact the agents for more information.