Commercial
More from realestate.co.nz:
Agents News

Industrial Land 4000m2 (Lot 18) Rangiuru

Industrial Land 4000m2 (Lot 18) Rangiuru Business , Rangiuru

Industrial Land
dollar

$2,600,000 Plus GST (if any)

Land area
0.40ha
On this page:

Map

Property details

Listing # TGC214272 | Listed on 1 October

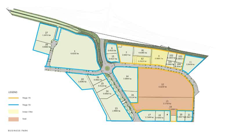
The Rangiuru Business Park is a major industrial development located near Te Puke in the Bay of Plenty, New Zealand. Spanning 148 hectares across four stages, it is set to become the region's largest consented greenfield industrial zone.

•Total area: 0.4ha
•Stage 1, covering approximately 14 hectares, is currently selling, with titles expected by late 2025

The development includes significant infrastructure, such as a $60 million motorway interchange connecting the park to State Highway 2, co-funded by Quayside Holdings and the Provincial Growth Fund. The park incorporates sustainable design elements, including a 48-hectare stormwater pond and wetland, and collaborates with local iwi to ensure cultural considerations are met.

A full Information Memorandum is available on request.

Contact the agents for more information.

Your notes
Add notes for your personal reference. This can only be seen by you.
Contact the agent
Name  (required)
Email  (required)
Phone
I'd like to enquire about:
Your message
A young family with pets illustration