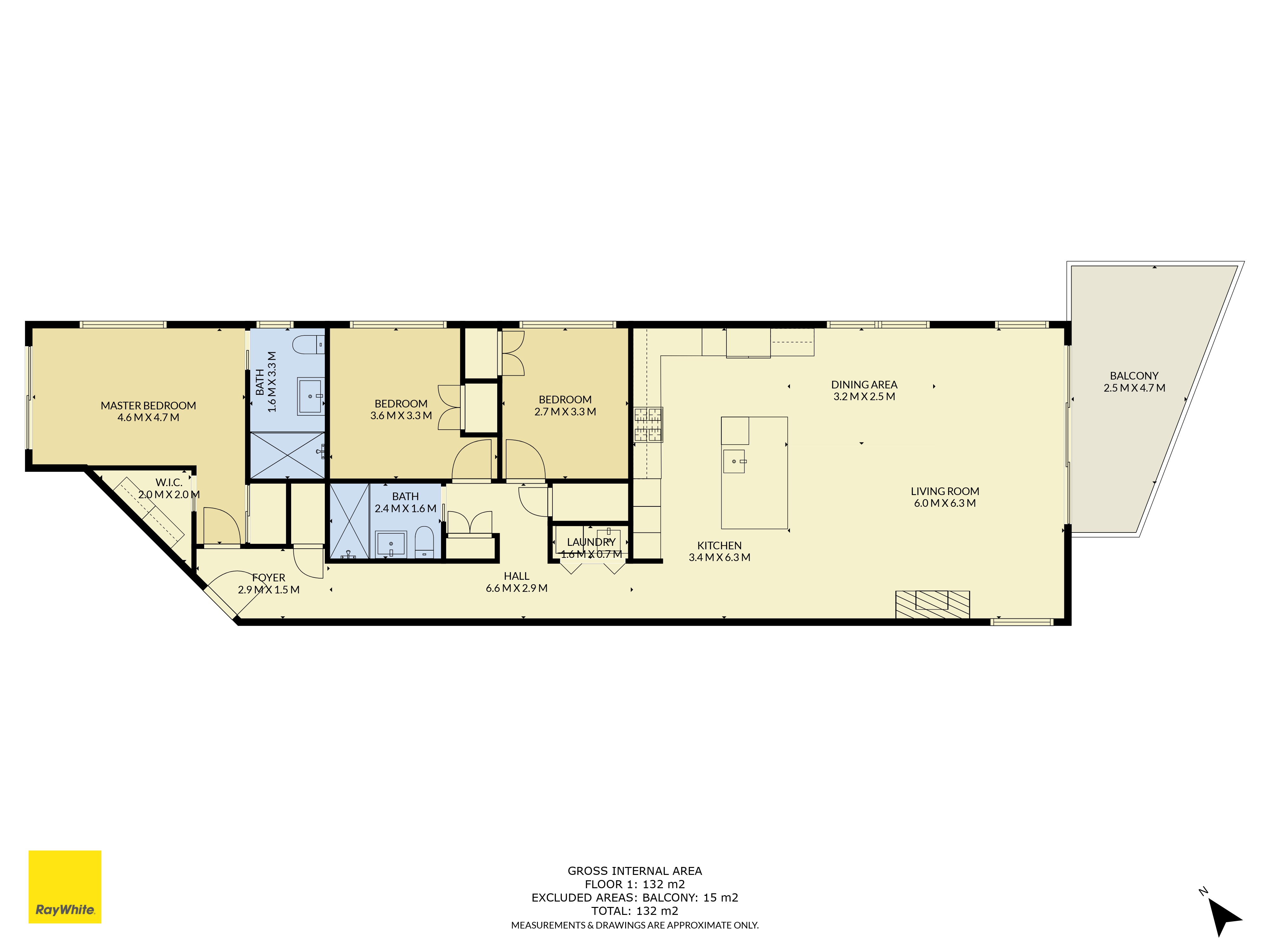
Excellent position and presentation describes this architecturally designed Quayside apartment. Built in quality, low maintenance materials, the timeless elegance will ensure its ongoing appeal. Offering three double bedrooms, the master bedroom opens out onto the patio area, and has its own ensuite. There are two gorgeous bathrooms, (including the ensuite), both of which have floor to ceiling tiles, spacious glass panel showers with quality fixtures, and underfloor heating.
The hub of the home showcases a generous lounge/dining and kitchen that flows seamlessly to the external deck, where you can overlook the marina and watch the world pass you by. Culinary enthusiasts will fall in love with the gorgeous kitchen, complete with gas hob, oven, microwave, fridge, wine fridge, range hood, dish-drawers and a large imported stone bench top that doubles as a breakfast bar/entertaining space. The home also comes with a washing machine and dryer - all ready for you to just move.
Finished in neutral colours throughout, the home will appeal to many as individual accessories will easily blend. The secure garage below the apartment has separate entry and exit access to ensure safety at all times. This property comes with two designated parking spaces, plus a lock up storage. Leave the car at home and stroll across to the many cafes, restaurants, shops, art gallery and the Hundertwasser Art Centre at the Marina, or take a walk around the Loop before you enjoy a coffee with friends. It has such a wonderful vibe down in this central Whangarei city outdoor space.
If you are looking for an exceptional lock up and leave opportunity, that has been built with modern convenience in mind, please give me a call to arrange a viewing.
www.rwwhangarei.co.nz/WHC38182