Residential
More from realestate.co.nz:
Agents News

2/6B Sunnyside Road, Nawton, Hamilton City

3-Bed Property Close to the Base

dollar

Asking Price $721,000

Townhouse
Townhouse
Bedroom
3
Bathroom
2
Garage
1
On this page:

Open homes

No upcoming open homes

Property details

Listing # 72151 | Listed on 17 October

THIS PROPERTY IS A MUST VIEW

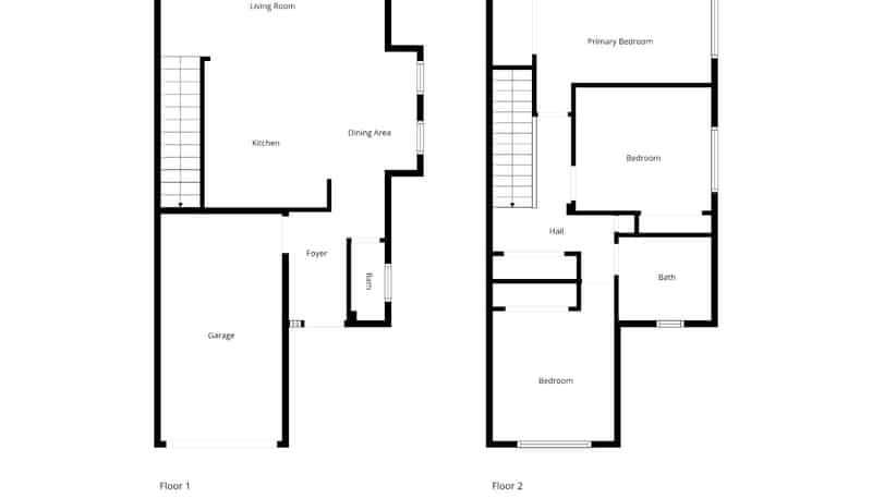
Beautifully designed modern 3-bedroom, 2-bathroom (family bathroom with separate toilet upstairs and additional toilet downstairs) townhouse offers the perfect blend of modern comfort and convenient living. Spacious floorplan and a single internal garage, this property presents an ideal opportunity for families, professionals, first-home buyers or investors seeking a quality property.

Step inside to discover a well-appointed home that maximises every square metre with intelligent design and practical layout. Downstairs there is an open plan kitchen and living area filled with natural light. Also, an internal garage and separate toilet. Upstairs the three generous bedrooms, family bathroom and another toilet.

The location offers good transport links in and out of the city, easily connecting to the Waikato Expressway. The Base Shopping Centre is basically on your doorstep, just a 5min drive away. With local shops and schools easily accessible.

Properties like this don’t last long. Both townhouses at this address are available for sale, perfect if you are an investor looking to add to your portfolio, buy 1 or 2 at the same location.

This is your opportunity to get in before it's too late, contact Gavin today for a private viewing.

LM Realty is here to do business with all agents and their buyers, talk to us for more details.

*Note: the floor area and property information was sourced from Property Guru and/or LINZ.

Your notes
Add notes for your personal reference. This can only be seen by you.

Schools and childcare in the area

$
$
% p.a.
years
$0 per week
Contact the agent
Name  (required)
Email  (required)
Phone
I'd like to enquire about:
Your message
A young family with pets illustration