Book a viewing: https://apply.tenant.co.nz/6937377
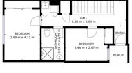
Stunning fully furnished 2-bedroom home, split over two levels with no one above and only a few close neighbours. Featuring high ceilings and built-in wardrobes, this stylish property offers space, privacy, and comfort.
The ground floor boasts a spacious open-plan living area with French doors that open onto a west-facing deck, perfect for enjoying the afternoon sun.
A cupboard laundry includes a washing machine and, unusually for an apartment, a laundry tub for added convenience.
An allocated car park and storage locker are also included.
Features include:
Two generous bedrooms
Modern kitchen and open-plan living area filled with natural light
Prime location with easy access to everything the city has to offer, enjoy cafés, shops, and bars in the Cuba Precinct, with the waterfront, CBD, and town belt all within walking distance
Fully furnished, just bring your linen!
Move-in costs:
Bond required: 4 weeks’ rent
Rent in advance: 2 weeks
Available: Now
Rent: $690 per week
Book a viewing: https://apply.tenant.co.nz/6937377