Residential
More from realestate.co.nz:
Agents News

184 Saint Heliers Bay Road, St Heliers, Auckland City

Magnificent views | ORA Agreement

dollar

$1,870,000 Plus GST (if any)

Retirement
Retirement living
Bedroom
2
Bathroom
1
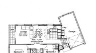
Floor area
75m2
Garage
1
On this page:

Open homes

Wednesday
12:00pm - 3:00pm
05
Nov
Wednesday
12:00pm - 3:00pm
12
Nov

Property details

Listing # GJTH12 | Listed on 3 November

Don’t miss out on this luxury townhouse!

Situated at the edge of the prestigious Grace Joel village, this elevated townhouse enjoys amazing sunshine from morning to late afternoon. With unobstructed 180 degree views, enjoy magnificent outlooks of Coromandel, Waiheke and Rangitoto islands, and up to Whangaparaoa.

Step into your modern open plan kitchen and living area which flows out to your sun-drenched balcony. Your storage and parking needs will be met with your large internal access garage.

Grace Joel Village is a vibrant community located right next door to EastMed Integrated Medical Centre. Enjoy our café with lovely outdoor seating, be pampered in our hair and beauty salon or have a friendly game of pétanque with fellow residents.

Price based on 30% DMF

Your notes
Add notes for your personal reference. This can only be seen by you.

Additional features

Double story
1 storey
Views: Unobstructed 180 degree views
Balcony: sun-drenched balcony
Cafe: On-site cafe with outdoor seating serving delicious coffee and food
Hair and beauty : Hair and beauty salon on-site
Swimming Pool and Spa : Indoor heated pool to enjoy year round
Gym and exercise classes : Maintain your busy lifestyle with gym and excerise classes for residents
$
$
% p.a.
years
$0 per week
Contact the agency
Name  (required)
Email  (required)
Phone
I'd like to enquire about:
Your message
A young family with pets illustration