Residential
More from realestate.co.nz:
Agents News

39 Holland Road, Hillcrest, North Shore City

Over 60 Years In The Making!

gavel

Auction

House
House
Bedroom
3
Bathroom
1
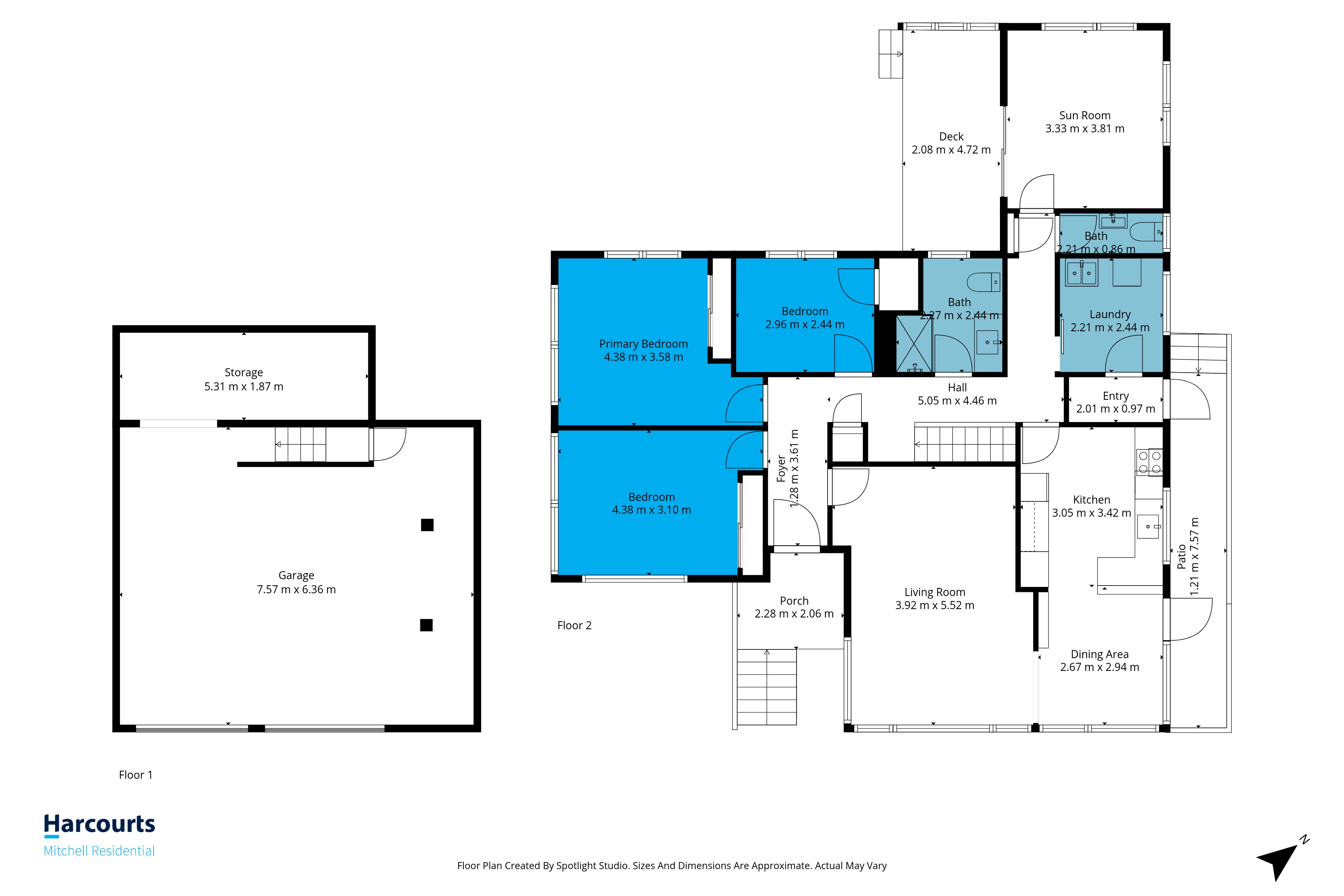
Floor area
190m2
Land area
675m2
Garage
2
On this page:

Open homes

Saturday
2:00pm - 2:30pm
08
Nov
Sunday
2:00pm - 2:30pm
09
Nov

Auction

Saturday
1:00pm
On Site
29
Nov

Property details

Listing # L37486764 | Listed on 5 November

Cherished by one family for more than six decades, this much-loved home now offers a once-in-a-lifetime opportunity to secure a piece of local history. Tightly held and never before available for sale, 39 Holland Road is a home filled with heart, memories, and timeless charm.

Set on a generous site, this solid family residence offers classic comfort and huge potential - ready for its next chapter. With its original integrity beautifully preserved, there's scope here to simply move in and enjoy, modernise to taste, or reimagine entirely for contemporary family living.

Positioned in a quiet, established neighbourhood where homes rarely change hands, this property represents more than just real estate - it's a legacy.

Opportunities like this come around once in a generation. It's yours for the taking!

Auction - On site Saturday 29th November at 1:00pm (Unless Sold Prior).

Your notes
Add notes for your personal reference. This can only be seen by you.

Additional features

Other park
4 other parks
Water closet
2 Separate toilets
Other Features: Bathroom Heater,Water filter,Chair lift

Schools and childcare in the area

$
$
% p.a.
years
$0 per week
Contact the agent
Name  (required)
Email  (required)
Phone
I'd like to enquire about:
Your message
A young family with pets illustration