Residential
More from realestate.co.nz:
Agents News

8 Molly Place, SOUTHBRIDGE, Selwyn

Brand-New, High-Spec Home

dollar

Enquiries Over $799,000

House
House
Bedroom
3
Bathroom
2
Floor area
200m2
Land area
696m2
Garage
2
On this page:

Open homes

No upcoming open homes

Property details

Listing # 7041071 | Listed on 7 November

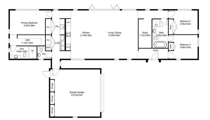
Set on a generous 696m² section in a quiet cul-de-sac, this brand-new home delivers modern design, quality finishes, and everyday functionality in equal measure.

Constructed in 2025, the exterior showcases a low-maintenance brick finish complemented by stylish Coloursteel T-Rib feature walls, adding a sharp architectural edge.

Step inside to an open-plan kitchen, dining, and living space with cathedral ceilings and excellent natural light. The kitchen is thoughtfully designed with a galley-style butler’s pantry that also incorporates laundry facilities, offering both practicality and storage.

Comfort is well covered with a heat pump and a centrally placed electric fire for year-round ease. Large stacker sliding doors extend the living space to a sunny patio, ideal for outdoor entertaining.

The master suite includes outdoor access, a walk-in wardrobe, and a tiled ensuite. Two further double bedrooms are located at the opposite end of the home and are serviced by a family bathroom featuring a freestanding bath and separate shower. One of these bedrooms has the added benefit of direct bathroom access.

A separate study offers a dedicated workspace, while a well-positioned guest toilet adds convenience.

With an internal-access double garage, quality fixtures throughout, and a smart, modern layout, this home is ready for its new owners to move in and enjoy.

Your notes
Add notes for your personal reference. This can only be seen by you.

Additional features

Water closet
1 Separate toilet

Schools and childcare in the area

$
$
% p.a.
years
$0 per week
Contact the agent
Name  (required)
Email  (required)
Phone
I'd like to enquire about:
Your message
A young family with pets illustration