Residential
More from realestate.co.nz:
Agents News

31 PIPI CRESCENT, Tuakau, Franklin

Brand-New 5-Bdrm Home – Move by March 2026

dollar

Negotiation

Section
Lifestyle property
Bedroom
5
Bathroom
3
Floor area
207m2
Land area
525m2
New build
New build
On this page:

Property details

Listing # 619634 | Listed on 18 November

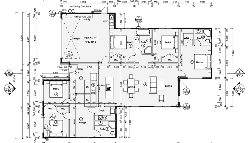
Get ready to secure a brand-new family home in the heart of Tuakau, completing by March 2026. Designed with modern living and flexibility in mind, this stunning 5-bedroom property offers comfort, style, and space for the whole family. Perfect for those wanting a fresh start in a growing, family-friendly location.

Key Features:
Smart 3+2 bedroom layout ideal for extended family or teens
Light-filled open-plan living with a designer kitchen
Second lounge plus a handy kitchenette for flexible living
Three modern bathrooms including master ensuite
Built-in air conditioning for year-round comfort
Double garage with plenty of storage space
Positioned on a generous 525m² freehold section
Walking distance to Tuakau College, parks, and playground
Only 10 minutes to Pukekohe for shops, cafés, and amenities

A fantastic opportunity to lock in a quality new build before completion. Move into a modern home designed for convenience, lifestyle, and long-term value.
Call now to learn more or book your exclusive early viewing!

Your notes
Add notes for your personal reference. This can only be seen by you.

Additional features

Other park
2 other parks

Schools and childcare in the area

$
$
% p.a.
years
$0 per week
Contact the agent
Name  (required)
Email  (required)
Phone
I'd like to enquire about:
Your message
A young family with pets illustration