From the moment you arrive, 23 Goldney Close feels like more than just a house - it feels like home. There is a genuine sense of warmth here, a place that has been lovingly cared for and where you immediately feel at ease. Set in a quiet, secure neighbourhood, this is a home that offers space, comfort and privacy in equal measure.
Built in 2013 by Orange Homes, this substantial residence spans an impressive 275sqm (sourced from approved floor plan - area over foundation) on a 774sqm (more or less) section, providing generous proportions throughout while remaining wonderfully low maintenance.
Designed with family living and entertaining in mind, the home offers four generous double bedrooms, including a standout master suite featuring beautiful bay windows, a walk-through wardrobe and a stunning ensuite with a large tiled shower and double vanities. The family bathroom is equally impressive, complete with tiled underfloor heating, a tiled shower and a full bath, plus a separate toilet for convenience.
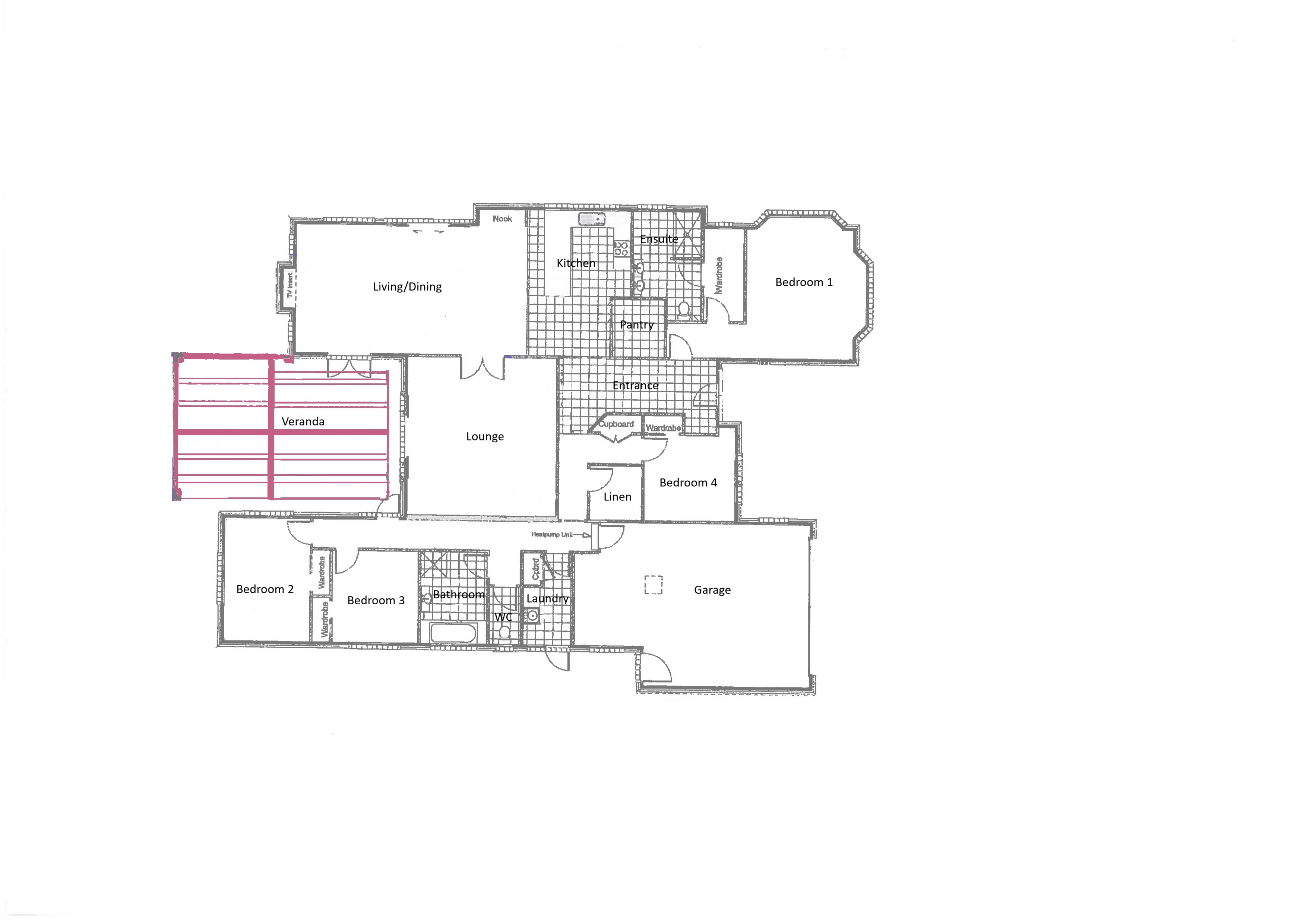
At the heart of the home is the modern open-plan kitchen, dining and living area. The kitchen features tiled underfloor heating, ample bench space and a walk-in pantry, making it both practical and inviting. The living area is enhanced by a boxed ceiling and a handy study nook, flowing seamlessly out to a large, covered veranda - an enviable 35sqm (approx) space perfect for entertaining or simply relaxing year-round.
A separate lounge provides an additional retreat, complete with a boxed ceiling and built-in media system with speakers - ideal for movie nights or quiet evenings in.
Comfort is assured year-round with a ducted heat pump servicing three zones, an additional heat pump and a DVS system. Practical features continue with a walk-in linen cupboard, separate laundry, and an internal access garage with attic storage, built-in workbench and storage cupboards.
Outside, established gardens with native plantings and irrigation create a private, peaceful setting. There is ample off-street parking with room for a caravan or boat, adding to the home's versatility.
Modern, spacious and thoughtfully designed, this is a home that offers convenience to amenities while providing a calm and private sanctuary. A property that has been truly loved - and it shows.
This is one you will feel, not just see.
DEADLINE SALE: Tuesday, 27 January 2026 at 12pm (unless sold prior)
Please be aware that this information has been sourced from third parties. View our property information disclaimer here: raineandhorne.co.nz/property-disclaimer