Residential
More from realestate.co.nz:
Agents News

87A Albert Street, Hamilton East, Hamilton City

Ham East Village Living - Great School Zoning

dollar

$689,000

Townhouse
Townhouse
Bedroom
4
Bathroom
2
Garage
2
On this page:

Open homes

Sunday
12:45pm - 1:30pm
18
Jan

Map

commute vehicle

Check your commute time from every listing - only available on our app.

Download our app now

Property details

Listing # L38581244 | Listed on 14 January

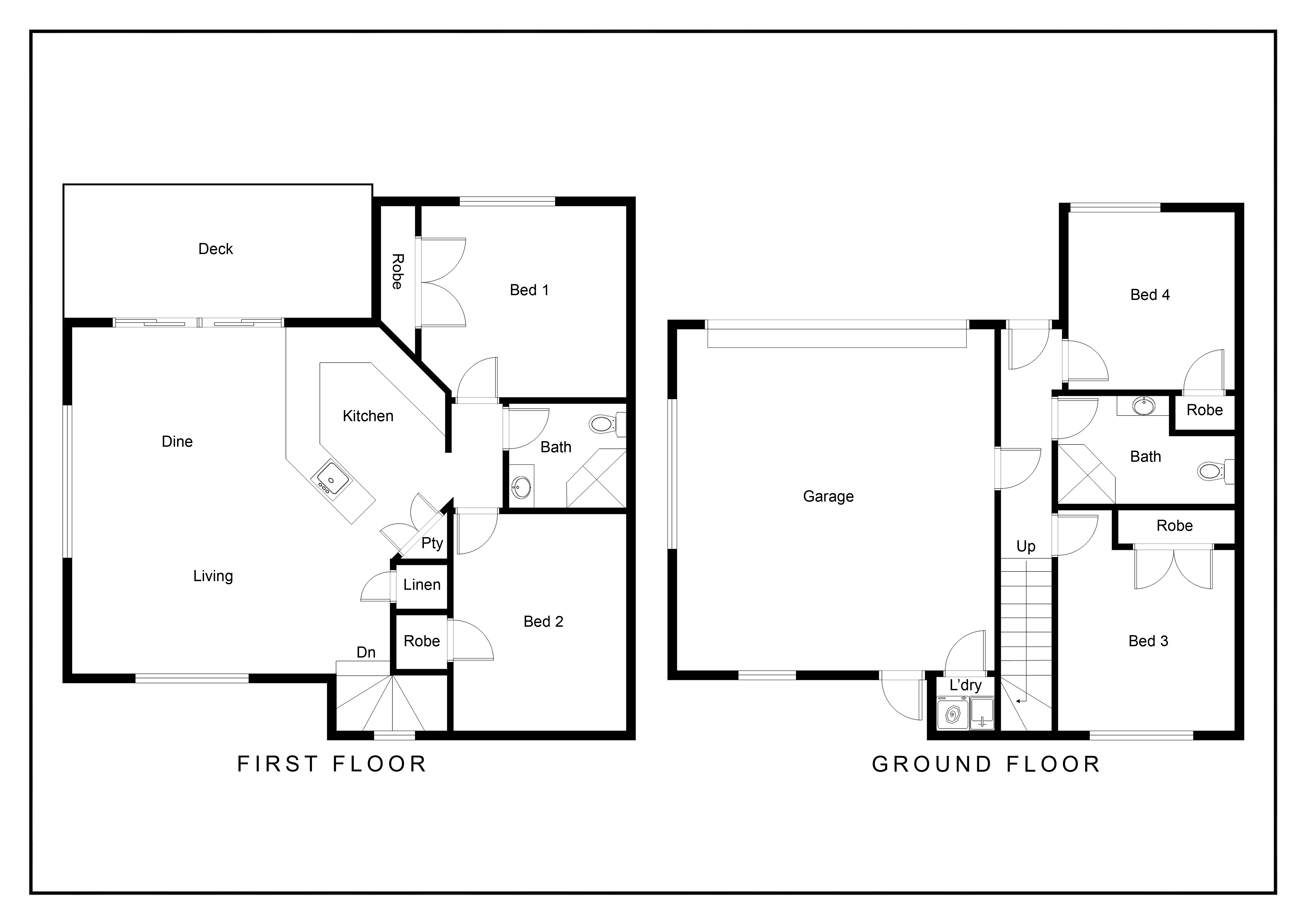
Those looking for a home or savvy investment in the heart of Hamilton East will immediately jump at this well maintained four bedroom home.
Designed well for easy maintenance and functionality, the home is well laid out for both families or flatmates. On the lower floor are two spacious bedrooms which are serviced by a family bathroom, while upstairs has a further two bedrooms with a second bathroom.
All bedrooms have good sized wardrobes. The living area is spacious and bathed in natural light and adjoins a large open plan kitchen and balcony. Double garaging, a private, sheltered courtyard and extra off street parking complete this excellent offering. With a proven rental history and reasonable body corporate, the home sits on picturesque, leafy Albert Street.
Spend your weekends strolling to the local cafes and boutique shopping of Hamilton East Village or exploring nearby river walks. Parents and investors will appreciate the close proximity to Waikato University and zoning for Hamilton East Primary, Berkley Intermediate and Hillcrest High School. A compliant Healthy Homes Certificate (dated 2020) is available as part of property pack.
Priced to sell - call Zoe or James to book your viewing today.

Your notes
Add notes for your personal reference. This can only be seen by you.

Additional features

Other Features: Gas Hobs,Heat Pump Remote,Garage Door Opener,Garage Door Remote,Heated Towel Rail x2,Window Fly Screens (as is),Fridge (as is),Washing Machine (as is)

Schools and childcare in the area

$
$
% p.a.
years
$0 per week
Contact the agent
Name  (required)
Email  (required)
Phone
I'd like to enquire about:
Your message
A young family with pets illustration