Residential
More from realestate.co.nz:
Agents News

9 Ryehill Street, Calton Hill, Dunedin City

High On Ryehill

dollar

Offers Over $579,000

House
House
Bedroom
3
Bathroom
1
Land area
541m2
Garage
1
On this page:

Open homes

Saturday
12:00pm - 12:30pm
24
Jan
Sunday
12:00pm - 12:30pm
25
Jan

Property details

Listing # MSG30653 | Listed on 22 January

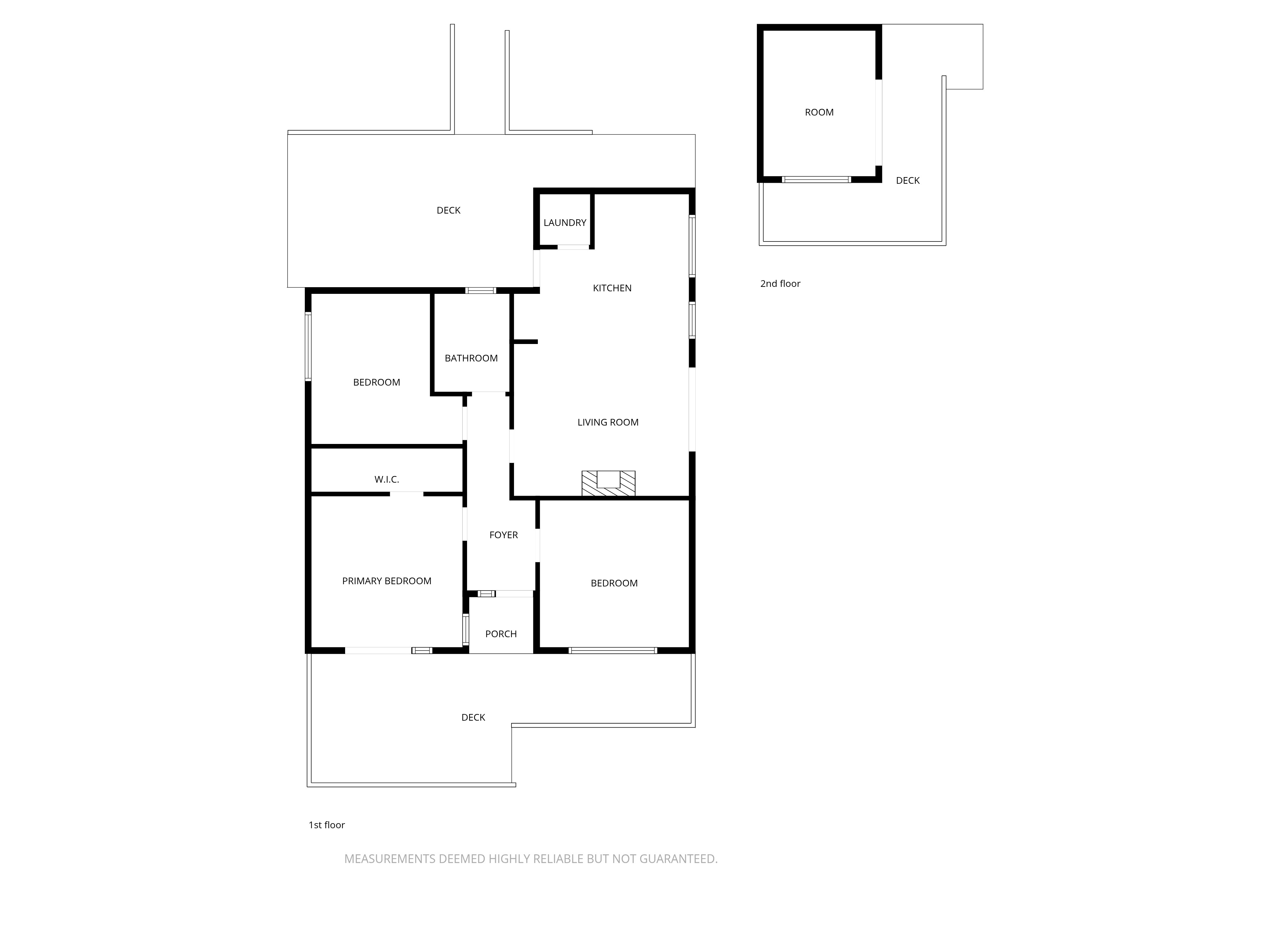
This elevated position on Calton Hill provides the very first glimpse of the morning sun and you'll understand why the home is surrounded on three sides by outdoor living spaces as well.
The interior has been updated most recently with new floor coverings and interior paint adding further appeal to the modern kitchen and bathroom spaces. Walk in ward-robing in the main bedroom adds to the convenience with a separate laundry space off from the kitchen area. The wood burner caters to your heating requirements and the majority of the home is double glazed with underfloor insulation. Separate garaging and off street parking with the additional bonus of the utility room at the rear of the section which could be a home office/gym or additional storage. There is a lot to enjoy about your new home in Ryehill Street and we look forward to showing you through soon.
LIM report available.

Your notes
Add notes for your personal reference. This can only be seen by you.

Additional features

Water closet
1 Separate toilet
Other Features: Solar Panels,Fridge Freezer

Schools and childcare in the area

$
$
% p.a.
years
$0 per week
Contact the agent
Name  (required)
Email  (required)
Phone
I'd like to enquire about:
Your message
A young family with pets illustration