Residential
More from realestate.co.nz:
Agents News

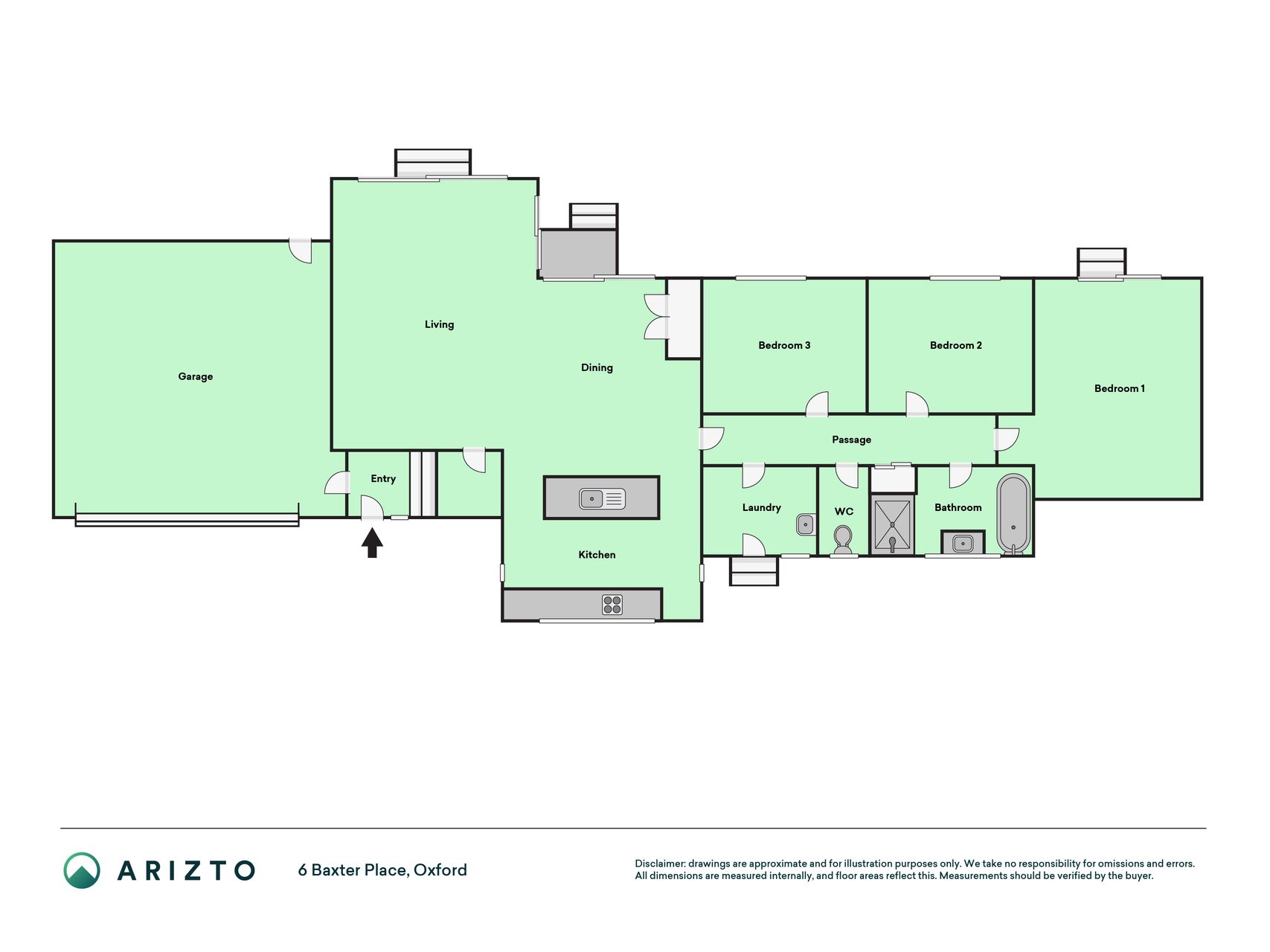
6 Baxter Place, Oxford, Waimakariri

A Peaceful Oxford Haven

dollar

Deadline Sale

House
House
Bedroom
3
Bathroom
1
Floor area
158m2
Land area
852m2
Garage
2
On this page:

Open homes

Sunday
12:00pm - 12:30pm
01
Feb

Deadline sale

Wednesday
2:00pm
18
Feb

Property details

Listing # ARZ15801 | Listed on 27 January

DEADLINE - 2.00pm Wednesday 18th February (unless sold prior)

Tucked at the end of a cul-de-sac in Oxford, this modern home sits on an 852m² section with a 158m² floor area, offering practical living, privacy, and easy indoor-outdoor flow.

Open-plan living connects the kitchen, dining, and lounge in one central space suited to daily life and entertaining. The kitchen offers generous bench space, modern appliances, and a macrocarpa island that adds warmth and character. Sliding doors open to a sunny deck and lawn. A log burner provides reliable heating, supported by a wetback system and solar hot water to keep running costs down. Large windows bring in natural light, while thermally broken aluminium joinery improves year-round comfort.

Built for efficiency, the home features 150mm walls with high-grade wall and ceiling insulation, plus insulated separation between the garage, bedrooms, and living areas, exceeding current code.

There are three bedrooms, each positioned for comfort and a peaceful outlook. The bathroom is well presented and functional, with a separate toilet. A dedicated laundry and good storage support the home’s easy-care layout.

The fully fenced section offers secure space for kids, pets, and outdoor living. Established planting, lawn, and a generous deck suit entertaining or relaxing. A large woodshed stores ample firewood for winter. Double garaging and off-street parking add further practicality.

Shops, schools, services, and recreation are all within easy reach, supporting a straightforward lifestyle with access to larger centres when needed.

Contact Kim Balcombe or Wendy Parker to arrange a viewing or come along to one of our open homes.

PROPERTY FILES: https://arizto.co.nz/property-search/6-baxter-place-oxford

Your notes
Add notes for your personal reference. This can only be seen by you.

Schools and childcare in the area

$
$
% p.a.
years
$0 per week
Contact the agent
Name  (required)
Email  (required)
Phone
I'd like to enquire about:
Your message
A young family with pets illustration