Residential
More from realestate.co.nz:
Agents News

19 Beach Road, Waihi Beach, Western Bay Of Plenty

Ocean Views, Lift Access, and Income Potential

dollar

Negotiation

House
House
Bedroom
4
Bathroom
2
Floor area
180m2
Land area
430m2
Garage
2
On this page:

Property details

Listing # L39180722 | Listed on 29 January

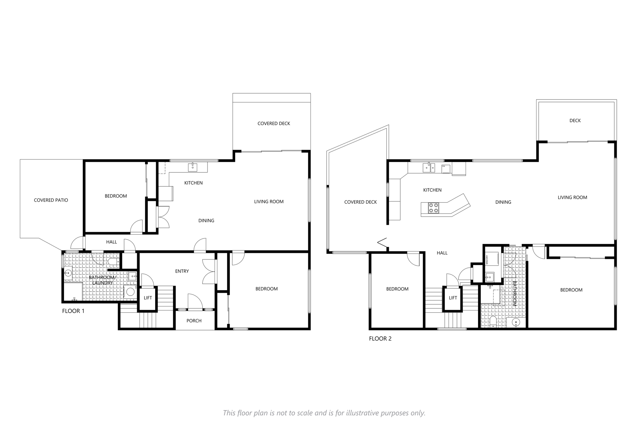
Positioned in the highly sought-after North End, this two-storey home delivers coastal living with flexibility and income potential. Offering three bedrooms, two bathrooms, plus a versatile office that can easily function as a fourth bedroom, the layout is ideal for families, professionals, or holiday use.

Enjoy elevated ocean views, easy lift access between levels, and three sun-soaked decks that capture all-day sun, providing ideal spaces for relaxing or entertaining. The versatile downstairs configuration presents an excellent rental or guest accommodation opportunity.

A double garage and off-street parking ensure ample space for vehicles, beach gear, and storage.

Just a short walk to the Surf Club, local café, playground, walking tracks, and the village, this is a prime location where lifestyle and convenience come together.

Your notes
Add notes for your personal reference. This can only be seen by you.

Schools and childcare in the area

$
$
% p.a.
years
$0 per week
Contact the agent
Name  (required)
Email  (required)
Phone  (required)
I'd like to enquire about:
Your message
A young family with pets illustration