Residential
More from realestate.co.nz:
Agents News

1266 New North Road, Avondale, Auckland City

Overseas calling! Motivated Vendor! Urgent Sale!

gavel

Auction

House
House
Bedroom
4
Bathroom
1
Floor area
214m2
Land area
635m2
Garage
2
On this page:

Open homes

Saturday
1:00pm - 1:45pm
07
Feb
Sunday
1:00pm - 1:45pm
08
Feb

Auction

Thursday
11:00am
In Rooms - 195 Universal Drive, Henderson
26
Feb

Property details

Listing # HF39287 | Listed on 3 February

Overseas calling! Vendor is highly motivated to sell this property. This much-loved property MUST BE SOLD, presenting an outstanding opportunity to secure a spacious family home!

Set on a freehold 635 sqm (more or less) site, the home features outdoor areas that wrap around the house, offering flexibility throughout the day. Whether you're gardening, watching the kids play, letting pets roam, or simply enjoying some fresh air, this layout creates a wonderful sense of openness and balance between indoor and outdoor living.

Inside, the home is generously proportioned, allowing every family member to enjoy their own space while still coming together comfortably. The internal double garage and ample off-street parking provide everyday convenience, making this a practical, well-functioning home for busy family life.

Key Features:

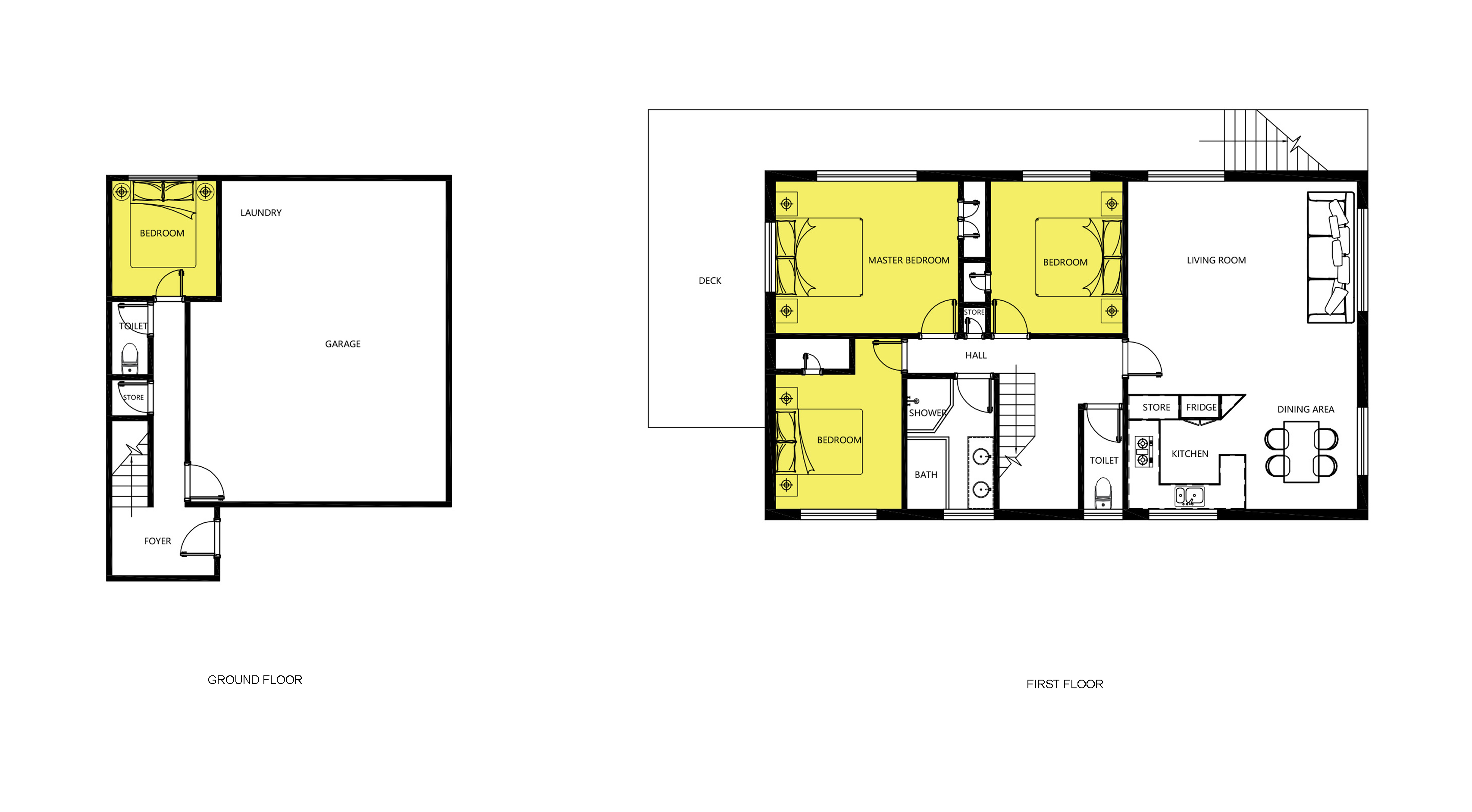
  • FREEHOLD 635m2
  • 4 well-sized bedrooms, 1 bathroom, and 2 toilets
  • Huge Internal double garage plus off-street parking
  • Outdoor spaces surrounding the home, ideal for gardening, play, or entertaining

Location Highlights:

  • Walking distance to Pak'nSave Mt Albert, local shops, restaurants, and parks
  • Easy access to public transport, including buses and train services
  • Quick connections to SH16 and SH20 motorways for smooth commuting
  • Zoned for Avondale Primary School, Avondale College, and more

This is a home that's easy to live in-practical, welcoming, and full of potential for a family to truly make it their own. Whether you're upsizing, buying your first home, or investing in a high-demand location, this property offers comfort today and confidence for the future. Contact Warren at 022 033 0447 or Huyen at 027 738 9999 for more information.

Auction (Unless Sold Prior):
Thursday, 26 February 2026 @ 11:00 am - In Rooms, 195 Universal Drive, Henderson

Conjunctionals are MOST welcome!

  • Disclaimer: The photographs used in this marketing material were taken when the property was staged and do not reflect the current presentation of the home.
Your notes
Add notes for your personal reference. This can only be seen by you.

Additional features

Other park
4 other parks
Water closet
2 Separate toilets

Schools and childcare in the area

$
$
% p.a.
years
$0 per week
Contact the agent
Name  (required)
Email  (required)
Phone
I'd like to enquire about:
Your message
A young family with pets illustration