Residential
More from realestate.co.nz:
Agents News

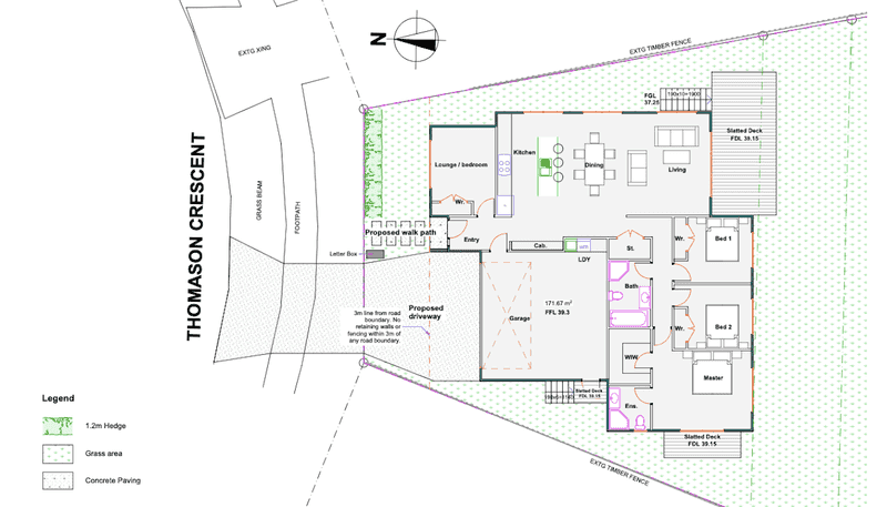
8 THOMASON CRESCENT, Pokeno, Franklin

Move Into Comfort, Space & Scenic Surroundings

dollar

Negotiation

House
House
Bedroom
4
Bathroom
2
Floor area
171m2
Land area
613m2
Garage
2
New build
New build
On this page:

Property details

Listing # 623815 | Listed on 5 February

Welcome to this beautifully designed under-construction 4-bedroom, 2-bathroom family home offering the perfect blend of comfort, functionality, and contemporary style. Set on a generous 171m² floor plan, this thoughtfully laid-out residence is ideal for growing families, multi-generational living, or savvy investors.

Key Features:

  • Open-Plan Living – The heart of the home features a spacious kitchen with island bench and seamless flow into the dining and living areas, perfect for everyday living and entertaining.
  • Seamless Indoor-Outdoor Flow – Large sliding doors open to a generous deck, ideal for relaxing or hosting guests year-round.
  • Breathtaking Mountain Views – Enjoy picturesque natural surroundings right from your backyard.
  • 2.7m High Ceilings – Enhances space, light, and overall comfort throughout the living areas.
  • Central Air Conditioning – Efficient climate control across the home.
  • LED Bathroom Mirrors – Modern, stylish, and practical finishes.
  • Carpeted Double Internal Garage – Secure and convenient with direct internal access.
  • Close to Motorway On/Off Ramp – Quick and easy access for commuters travelling to Auckland or Hamilton.

A fantastic opportunity to secure a brand-new home in a growing, high-demand location — enquire today to learn more or arrange a viewing.

Your notes
Add notes for your personal reference. This can only be seen by you.

Additional features

Other park
2 other parks

Schools and childcare in the area

$
$
% p.a.
years
$0 per week
Contact the agent
Name  (required)
Email  (required)
Phone  (required)
I'd like to enquire about:
Your message
A young family with pets illustration