Residential
More from realestate.co.nz:
Agents News

300 Given Avenue, Whangamata, Thames-Coromandel

Entertainer's Delight

gavel

Auction

House
House
Bedroom
3
Bathroom
2
Floor area
191m2
Land area
662m2
On this page:

Open homes

Friday
4:15pm - 4:45pm
06
Feb
Saturday
11:30am - 12:00pm
07
Feb

Auction

Wednesday
2:00pm
503 Port Road, Whangamata
11
Mar

Property details

Listing # WHA30653 | Listed on 6 February

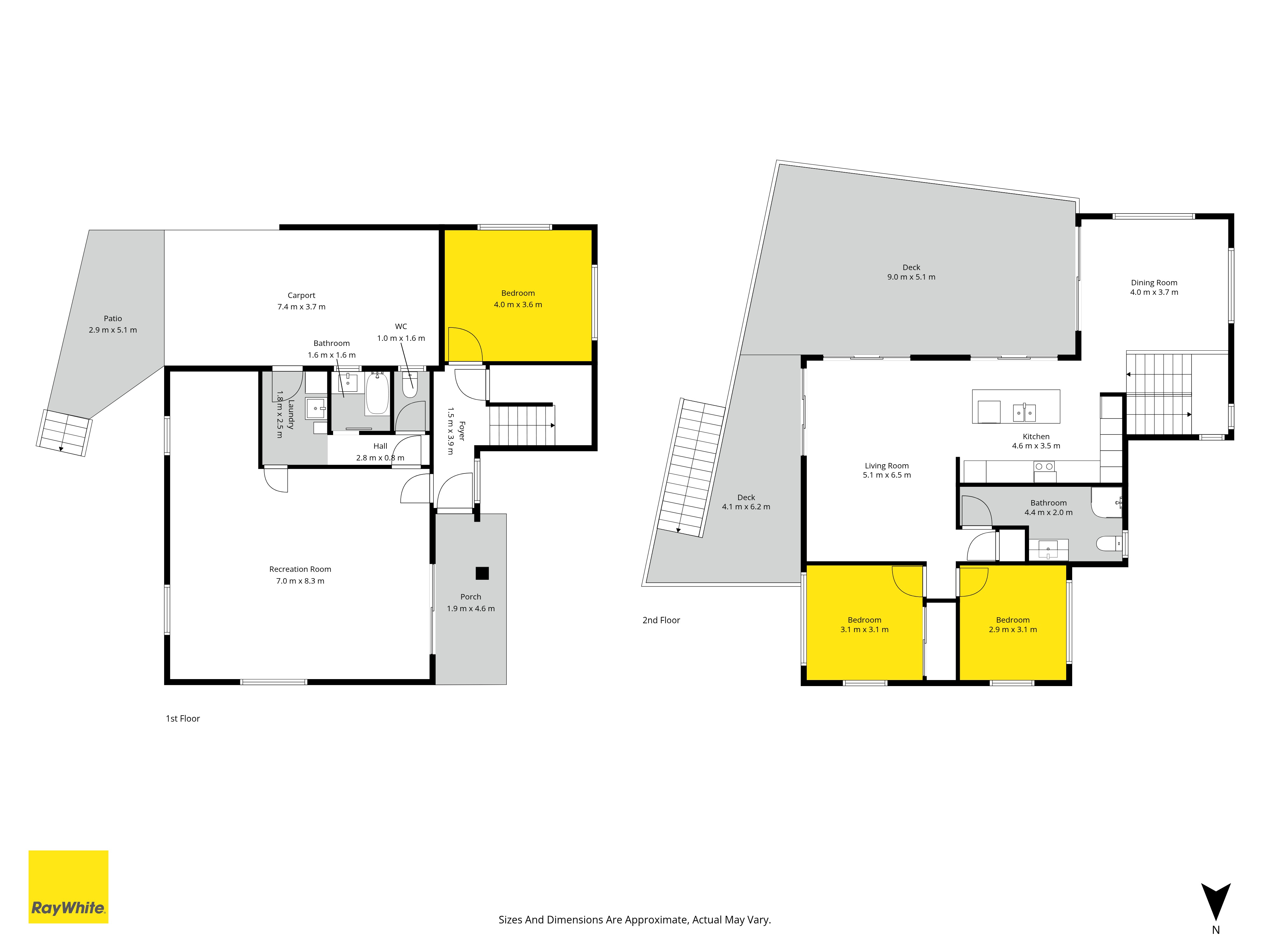
Claim your corner, a "classic Whangamata" vibe blended with modern luxuries, spectacular Island view outlook and an easy 2-minute walk to Access 14.

  • Beautiful indoor-outdoor flow with tall stacker slider doors receiving morning/evening sun
  • Mastercraft designer open-plan Kitchen with breakfast bar layout opening onto a spacious balcony
  • Inviting polished wood floors throughout the living, gaining a light-filled, warm natural vibe
  • Separate dining area for entertaining and BBQ's, perfect for all weather conditions
  • Upper level with north facing master bedroom, plus another double bedroom and family size bathroom
  • Downstairs gains room for extra guests or as another living/rumpus area and third bedroom/office
  • Separate laundry onto a patio with spa area and outdoor gas shower
  • Re- cladded, rewired, gibbed, new roof and double glazed joinery placed when new additions were completed in 2015
  • Corner site with two entrance ways with veggie boxes and two garden sheds
  • Flat freehold site 662 sqm, plenty of room for extra parking, boats and campervans
  • Enjoy safe swimming and an easy paddle out to Donut Island

Why not pop in at our open home and see this for yourself or call to view at a time that suits you! - ph 0221022649

For sale by Auction, at 2:00 pm on Wednesday 11th March, Ray White Office, 503 Port Road, Whangamata (unless sold prior)

See full features and chattels on the Ray White website:
https://rwwhangamata.co.nz/WHA3065

Your notes
Add notes for your personal reference. This can only be seen by you.

Schools and childcare in the area

$
$
% p.a.
years
$0 per week
Contact the agent
Name  (required)
Email  (required)
Phone
I'd like to enquire about:
Your message
A young family with pets illustration