Residential
More from realestate.co.nz:
Agents News

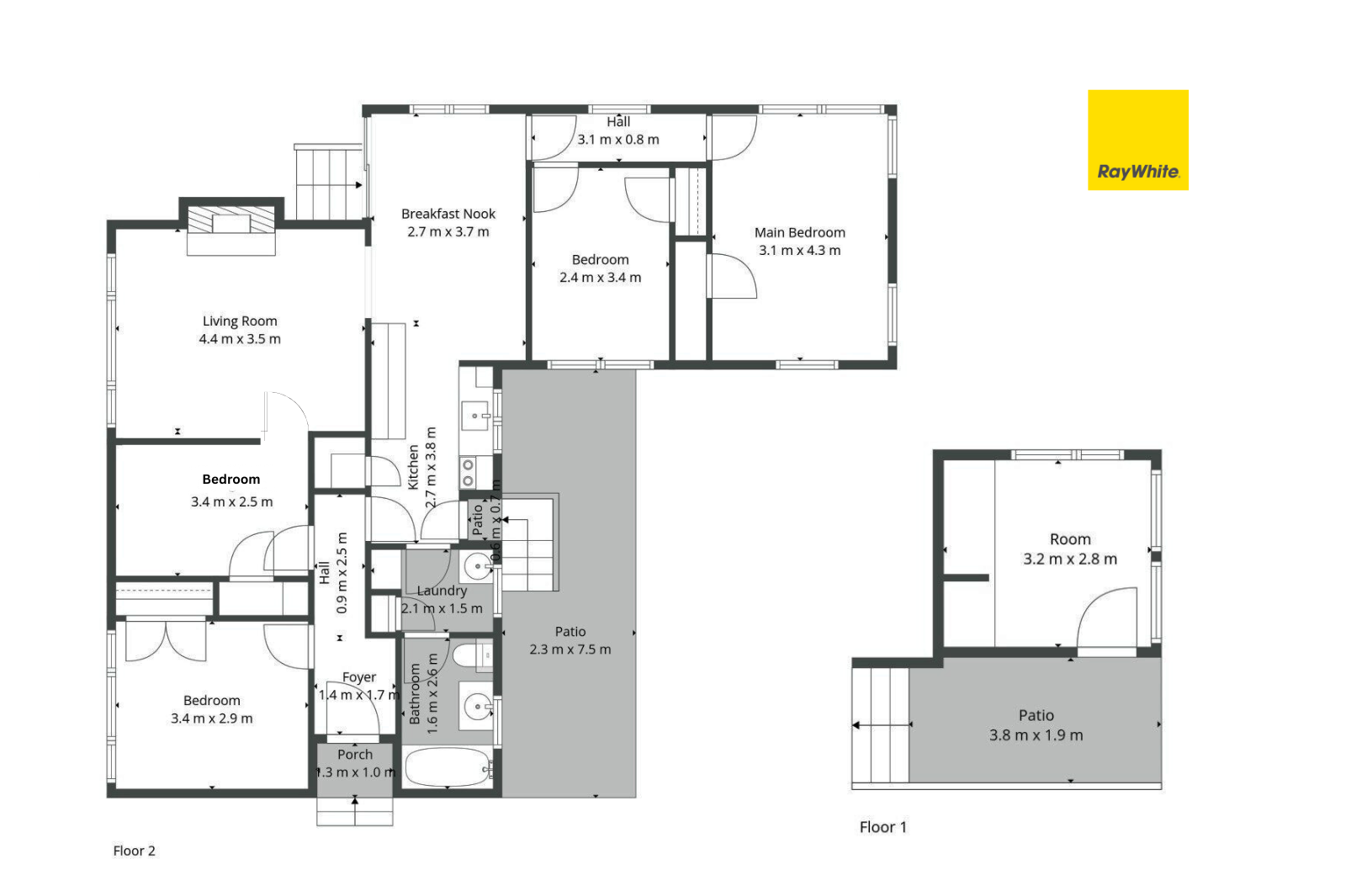
34 Williams Crescent, Otara, Manukau City

5 Big Rooms on 600+sqm Section

dollar

Negotiation

House
House
Bedroom
4
Bathroom
1
Floor area
103m2
Land area
663m2
On this page:

Open homes

Saturday
2:00pm - 2:30pm
16
May
Sunday
2:00pm - 2:30pm
17
May

Property details

Listing # MKU47698 | Listed on 12 February

Welcome to 34 Williams Crescent, Otara - a charming three-bedroom home nestled on a spacious 663 sqm section. This property offers a perfect blend of comfort and potential, making it an ideal choice for families or investors looking for their next opportunity.

As you step inside, you'll find a well-maintained interior featuring an open plan dining area that flows seamlessly into the combined lounge. The space is bright and inviting, perfect for entertaining or relaxing with loved ones. The kitchen is standard but functional, equipped with essential appliances including an electric stove and rangehood.

The home boasts three cozy bedrooms, providing ample space for family or guests. The bathroom is conveniently located, catering to the needs of the household. For year-round comfort, a heat pump ensures a warm and inviting atmosphere during the cooler months.

With a building area of 103 sqm, there is plenty of room to grow and make memories. The outdoor space is perfect for gardening, play, or simply enjoying the fresh air in your own private sanctuary.

Currently listed as off-market, this property presents a unique opportunity for those seeking a home with potential in a desirable location. Don't miss your chance to explore the possibilities at 34 Williams Crescent, Otara. Contact us today for more information or to arrange a private viewing.

Disclaimer - All prospective purchasers shall complete their own due diligence, seek legal and expert advice, and satisfy themselves with respect to information supplied during the marketing of this property, including but not limited to: the floor and land sizes, boundary lines, underground services, along with any scheme plans or consents.

Your notes
Add notes for your personal reference. This can only be seen by you.

Schools and childcare in the area

$
$
% p.a.
years
$0 per week
Contact the agent
Name  (required)
Email  (required)
Phone  (required)
I'd like to enquire about:
Your message

By continuing, you agree to our terms of use and privacy statement.