Residential
More from realestate.co.nz:
Agents News

1-4/61 Brynley Street, Hornby, Christchurch City

Because Parking On Street Is Overrated

dollar

Offers Over $599,000

House
House
Bedroom
2
Bathroom
1
Garage
1
New build
New build
On this page:

Property details

Listing # NTW32012 | Listed on 16 February

A fantastic opportunity to secure a brand new home at 61 Brynley Street, built by a trusted builder and backed by a Master Build Guarantee for complete peace of mind.

If you have been watching the market you will know many new townhouses are being built without garages. These homes stand out by offering secure internal access garaging across all units, making them ideal for both homeowners and investors who value convenience and long term value.

Quality construction, smart layouts and modern finishes make these homes a standout choice.

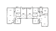
Unit Configuration

Unit 1
2 bedroom 1 bathroom with internal access garage
Total floor area 94.96 sqm

Unit 2
3 bedroom 2 bathroom with internal access garage
Total floor area 110.15 sqm

Unit 3
3 bedroom 2 bathroom with internal access garage
Total floor area 110.15 sqm

Unit 4
2 bedroom 1 bathroom with internal access garage
Total floor area 94.96 sqm

Key Features
Master Build Guarantee for peace of mind
Internal access garages in every unit
Quality kitchen with engineered stone benchtops
Bosch appliances
Open plan living and dining
Fully tiled bathrooms and quality fittings
Heat pump for year round comfort
Low maintenance landscaped sections
Freehold titles

These homes offer the perfect blend of style, practicality and investment potential. Whether you are a first home buyer, investor or downsizer, having a garage with a new build adds security, storage and long term appeal that many new developments simply do not offer.

Strong rental demand and modern construction make this a smart addition to any property portfolio or an ideal place to call home.

Property documents can be downloaded from the following site: https://www.propertyfiles.co.nz/property/930360003

REA guides can be found at: https://www.rea.govt.nz/buyers-and-sellers/read-our-guides/

All information about the property has been provided to Ray White by third parties. Ray White has not verified the information and does not warrant its accuracy or completeness. Parties should make and rely on their own enquiries in relation to the property.

Your notes
Add notes for your personal reference. This can only be seen by you.

Schools and childcare in the area

$
$
% p.a.
years
$0 per week
Contact the agent
Name  (required)
Email  (required)
Phone
I'd like to enquire about:
Your message
A young family with pets illustration