Searching for your first home, a lock-and-leave holiday escape or a smart investment property? 53 Longview Drive deserves your attention.
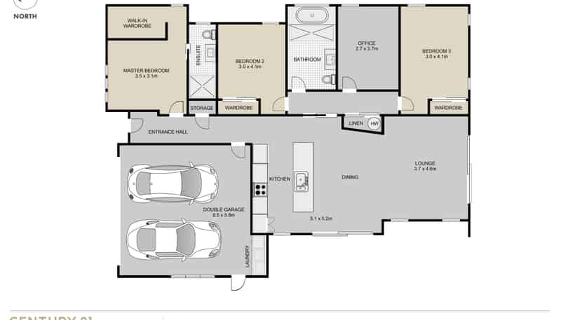
What sets this property apart is its generous four-bedroom layout, double internal-access garage, and larger 501sqm (approx.) section, offering more flexibility and space.
The sun-filled living area is thoughtfully positioned to the south, providing shelter from the prevailing northerly while capturing beautiful afternoon light. Established neighbouring homes create privacy, and the fully fenced yard makes it ideal for those with little feet or big paws.
Comfort is well covered through the cooler months, with underfloor heating in the living areas and bathrooms, complemented by ducted heating through the bedrooms and living area.
Finishing touches complete the functionality of the home, with an open-plan kitchen, tiled bathrooms, and a feature barn door separating the bedroom wing. Outside, its strong street appeal completes what is a well-rounded, easy-care home.
To arrange a viewing or learn more, contact Kate Gilbert on 021 043 6108, or pop in during the next open home.
Be sure to bring your towel for a post-viewing dip at the lake (just a five-minute drive) or lace up your running shoes for the nearby river track, only a couple of kilometres from the door.
Deadline Sale 12pm 11 Mar 2026 (unless sold prior)