Residential
More from realestate.co.nz:
Agents News

15 A - E North Street, Palmerston North Central, Palmerston North City

Buy Brand New - Central Living!

dollar

Offers Over $520,000

House
House
Bedroom
2
Bathroom
1
Floor area
72m2
Title type
Freehold
On this page:

Property details

Listing # RX4892220 | Listed on 18 February

Imagine moving into a stylish, modern home where everything is new, low-maintenance, and designed with your lifestyle in mind — all in one of Palmerston North’s convenient central locations. Now imagine being able to choose your colours, finishes, and personal touches, creating a home that feels uniquely yours from day one.



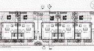
Enjoy an architecturally designed 72m2 floorplan offering two bedrooms, open-plan living, bathroom + guest toilet, great natural light and a landscaped low-maintenance outdoor area. A superb option for first home buyers, downsizers, or investors. Because they’re to be built, you get to choose your colours and finishes — from kitchen cabinetry to flooring, and paint tones. Move into a home that reflects your style. An amazing opportunity for first home buyers, singles, couples and investors - strong rental appeal for investors (rental assessment provided upon request).



15A - Land size 110m2 - $560,000 - AVAILABLE

15B - Land size 94m2 - $550,000 - AVAILABLE

15C - Land size 94m2 - $550,000 - AVAILABLE

15D - Land size 78m2 - $520,000 - AVAILABLE

15E - Land size 130m2 - $575,000 - AVAILABLE



A rare opportunity to secure a brand-new, centrally located townhouse with your own personal touch. Get in touch today an information pack.

Your notes
Add notes for your personal reference. This can only be seen by you.

Additional features

Water closet
1 Separate toilet

Schools and childcare in the area

$
$
% p.a.
years
$0 per week
Contact the agent
Name  (required)
Email  (required)
Phone
I'd like to enquire about:
Your message
A young family with pets illustration