Residential
More from realestate.co.nz:
Agents News

16 Catalina Bay Drive, Hobsonville, Waitakere City

Ultimate Seaside And Parkside Living

gavel

Auction

Townhouse
Townhouse
Bedroom
4
Bathroom
2
Floor area
267m2
Land area
135m2
Garage
2
On this page:

Open homes

Sunday
10:00am - 10:30am
22
Feb

Auction

Thursday
12:00pm
In Rooms - 128 Hurstmere Road, Takapuna
12
Mar

Property details

Listing # L39451621 | Listed on 18 February

This Jalcon home is a profound coastal masterpiece with a front-row position to Hobsonville's heritage park.

Beyond the most locally admired position, it could be a change of scenery or lifestyle that appeals to the next owner with this bespoke family home.

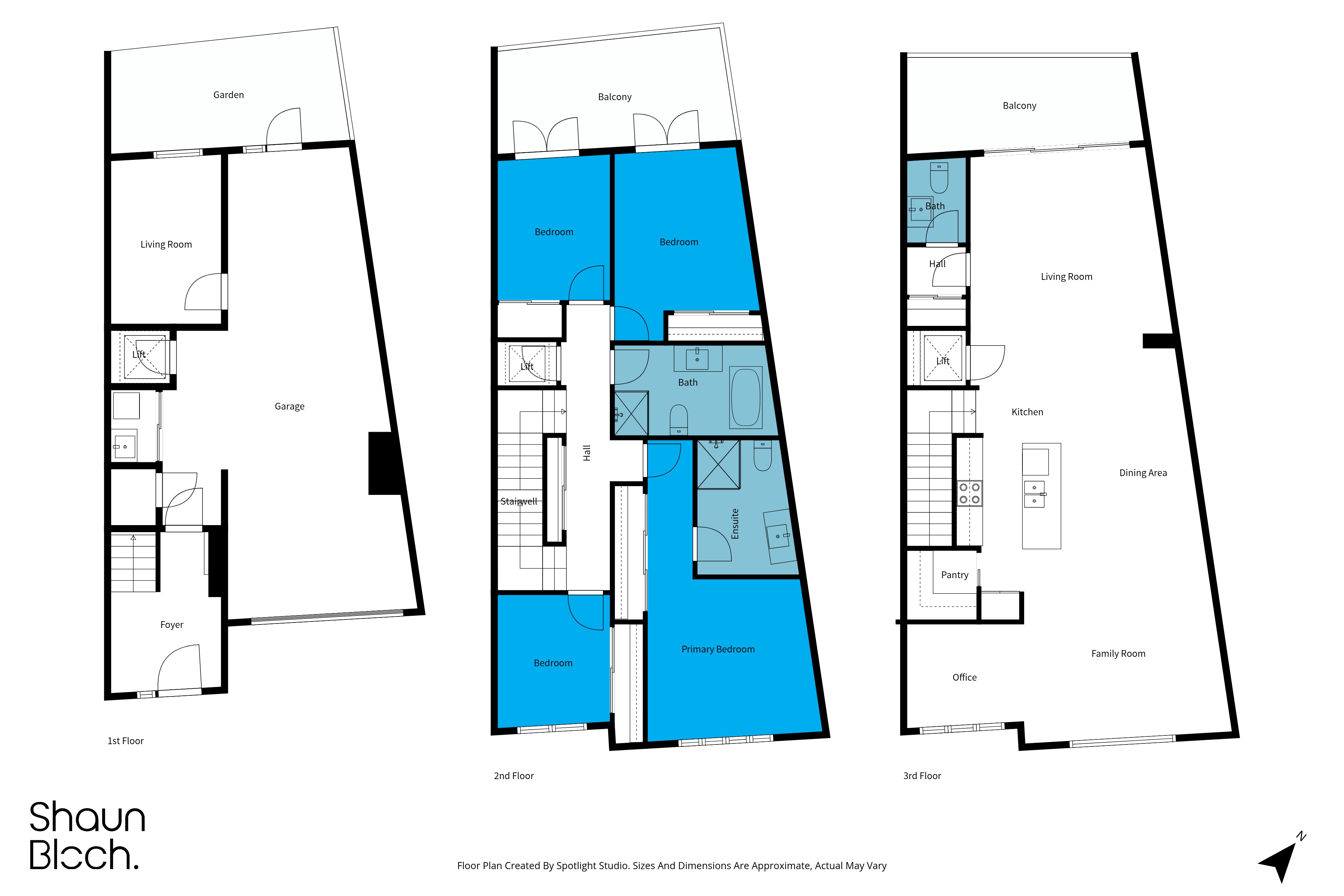
Inside, open-plan living delivers the edge for hosting and the flow for relaxed living. Light-filled with vaulted ceilings, anchored by the high-end kitchen, extending to an entertainer's deck and a conservatory, this is the best seat in the house for enjoying the outlook over the sea and park. Every bedroom is a retreat, with park views for some, balcony access for others, and all supported by built-in storage and either the master ensuite or a refined family bathroom. Above all else, it's the thoughtful customisations with a built-in home automation system that set this home apart.

• Bespoke living built by Jalcon Homes
• Positioned on the coastal edge of Te Onekiritea Park
• No maintenance lifestyle
• Panoramic water and park views
• Tandem garage with internal access
• Internal lift servicing all floors
• Four bedrooms plus a ground-floor office or gym space
• Two-and-a-half luxurious bathrooms, including master ensuite
• Numerous indoor and outdoor zones
• Open plan living extending to an entertainer's deck and a conservatory
• Cutting-edge kitchen featuring a walk-in pantry
• Tailor-made window shutters and a built-in home automation system
• High-spec customisations and finishes chosen for living performance and comfort

Start every day in nature with the sprawling heritage reserve on your front step. Walk the dog, cycle the pathways, stroll to Catalina Bay ferries, restaurants, and farmers markets. The parkside and seaside charm is undeniable. This opportunity is truly special and rarely available in the area.

To download property files, please visit https://www.harcourtsfiles.co.nz/listings/JX9T

Your notes
Add notes for your personal reference. This can only be seen by you.

Additional features

Other park
2 other parks
Water closet
3 Separate toilets
Rates
Rates: $4,509.83 per annum
Other Features: Wifi extenders

Schools and childcare in the area

$
$
% p.a.
years
$0 per week
Contact the agent
Name  (required)
Email  (required)
Phone  (required)
I'd like to enquire about:
Your message
A young family with pets illustration