Rural
More from realestate.co.nz:
Agents News

State Highway 23, Raglan, Waikato

Coastal Calm & City Convenience

dollar

$500,000 Including GST (if any)

Section
Lifestyle section
Land area
5000m2
Title type
Freehold
On this page:

Map

commute vehicle

Check your commute time from every listing - only available on our app.

Download our app now

Property details

Listing # HAM43100 | Listed on 20 February

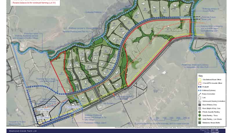
Te Uku Village lifestyle subdivision (Stage 1) is now available for sale with multiple options to purchase. The perfect location between beach life and the hustle of Hamilton city. Here is your opportunity to create a lifestyle so many dream of; minutes to the sand, moments to the city.

Option 1: Land + House Package.
There are multiple house and land package options available with G.J. Gardner Homes, voted New Zealand's most trusted home builder, 2025. There are several different package options to suit every need and budget. For example;

Atlantic Design- A spacious family home with multiple living areas, five bedrooms, a games room, double garage and an office. Priced from $1,350,000.
Island Design- A good sized family home with open plan living, four bedrooms, two bathrooms, double garaging and a second living area. Priced from $1,175,000.
For more information visit the website - www.gjgardner.co.nz.

Option 2: Land only
All sections are priced from $500,000 so grab first pick and purchase a lifestyle section to design your dream in the perfect position. Utilize your own preferred designer and builder.

Lots 1 to 6 range in size between 5,000sqm to 6333sqm so there is plenty of room to build your dream home, secondary dwelling, ample shedding and space for the family pets.
Te Uku Village Subdivision sits centrally between the fast-growing city of Hamilton, approximately 20 minutes away, and the vibrant seaside town of Raglan, approximately 7 minutes away. The laid-back community offers a diverse range of cafes, eateries, arts and crafts and live music venues. Yoga to surfing world class breaks, day hikes and amazing fishing.

You can create your very own lifestyle in Te Uku Village, with your own Raglan Roast coffee shop, a local grocer and primary schooling only a short walk or bike away. Bus stops for Hamilton High School options are also within a short walk or bike ride.
For more information or to meet onsite, call Richard today.

Your notes
Add notes for your personal reference. This can only be seen by you.

Schools and childcare in the area

$
$
% p.a.
years
$0 per week
Contact the agent
Name  (required)
Email  (required)
Phone
I'd like to enquire about:
Your message
A young family with pets illustration