Residential
More from realestate.co.nz:
Agents News

12/120 Beach Haven Road, Beach Haven, North Shore City

Motivated owners. Stunning outlook. Serious value

dollar

Deadline Sale

House
House
Bedroom
3
Bathroom
1
Floor area
124m2
Garage
1
Swimming pool
Swimming pool
On this page:

Open homes

Saturday
10:00am - 10:30am
07
Mar
Sunday
1:30pm - 2:00pm
08
Mar

Deadline sale

Monday
5:00pm
16
Mar

Property details

Listing # BHH30647 | Listed on 23 February

Secure exceptional value in this spacious single-level apartment overlooking Shepherds Park. The owners are on the move and motivated to sell - this is your chance.

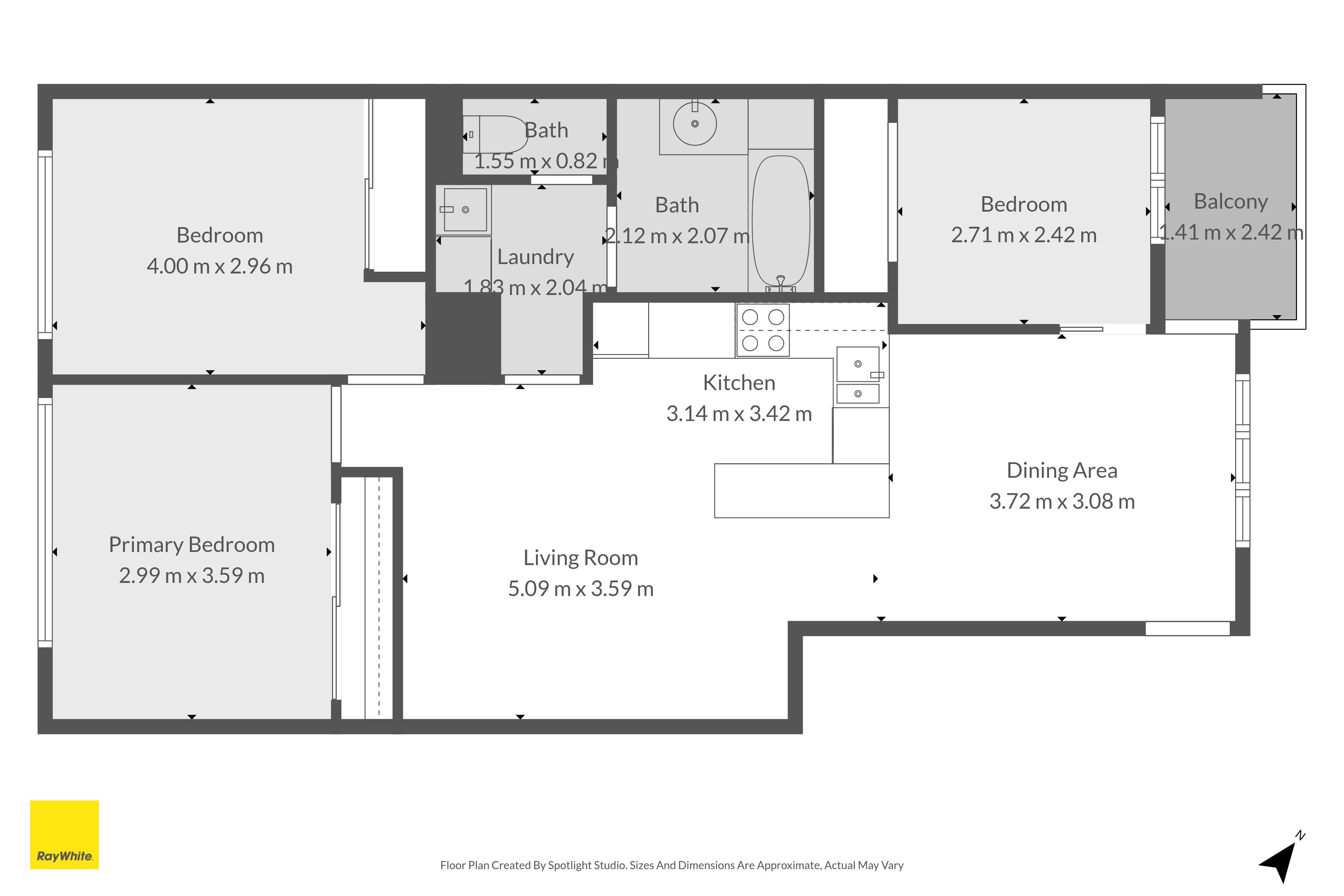
Set in a secure, gated complex, this larger floor plan offers three generous bedrooms, open-plan living filled with winter sun, and a deck with a peaceful bush outlook across the park. The modern kitchen connects seamlessly to the living space, making entertaining easy.

A rare oversized tandem garage provides room for your car, bikes, tools and more, plus there's ample visitor parking. Built with low-maintenance palliside weatherboard and a brand-new Colorsteel roof for added peace of mind. Enjoy resort-style living with a well-managed body corporate, secure entry, lighting, guest parking and a swimming pool - lock up and leave with confidence. Walk to Beach Haven village, with Shepherds Park at your doorstep offering playing fields, tennis and squash courts, playgrounds and coastal walkways. Just minutes to Glenfield Mall and easy motorway access.

  • Rates: $2,523.50 PA
  • Rental Appraisal: $600-$650pw
Deadline sale: Monday 16th of March, 5pm - Unless sold Prior
Your notes
Add notes for your personal reference. This can only be seen by you.

Schools and childcare in the area

$
$
% p.a.
years
$0 per week
Contact the agent
Name  (required)
Email  (required)
Phone  (required)
I'd like to enquire about:
Your message
A young family with pets illustration