Health circumstances mean this must be SOLD.
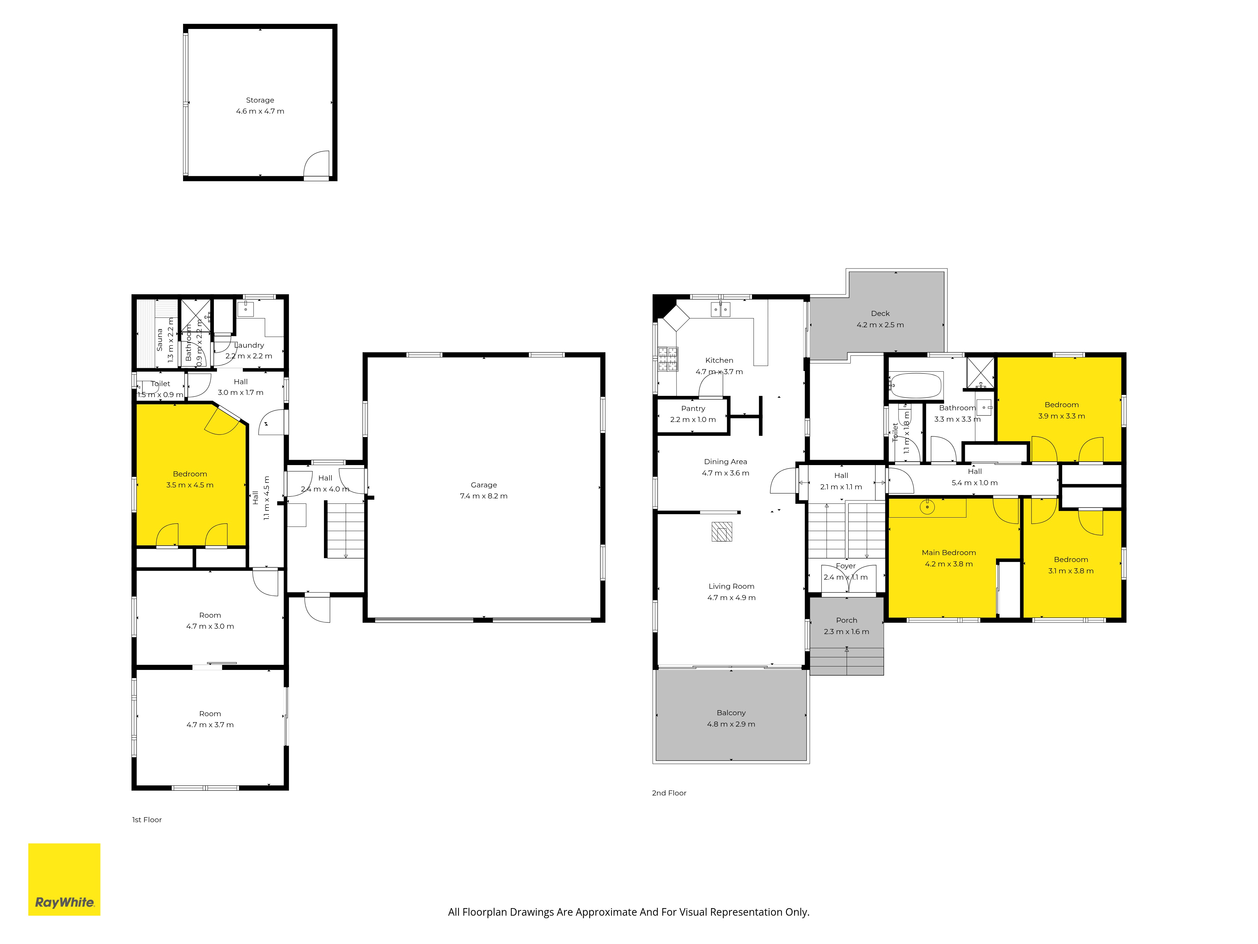
Positioned on a substantial 1,638m2 freehold section, this big, solid and unique 1970s home offers approximately 280m2 of floor area and endless scope to transform, modernise, or reimagine.
Inside you'll find three bedrooms plus a large rumpus room, one bathroom and two separate toilets. A flexible layout that suits growing families, home businesses, or those needing extra space to spread out.
This property ticks the boxes that matter. Prime location. Privacy. Upgrade potential.
For those working from home or needing serious power supply, the property is equipped with 3-phase power, ideal for machinery, workshops, or kilns. Whether you're a tradie, hobbyist or running a business from home, this setup opens doors.
Developers will see the land size. Families will see the space. Visionaries will see the upside.
A short stroll to the harbour, boat ramp and local park. Handy to shops, schools and everyday amenities.
#GAMEDAY 25th March 2026 from 9:00 am at Ray White Manukau (unless sold prior)
Disclaimer - This property is being sold by auction and therefore a price guide can not be provided. The website may have filtered the property into a price bracket for website functionality purposes. All prospective purchasers shall complete their own due diligence, seek legal and expert advice, and satisfy themselves with respect to information supplied during the marketing of this property, including but not limited to: the floor and land sizes, boundary lines, underground services, along with any scheme plans or consents.