Residential
More from realestate.co.nz:
Agents News

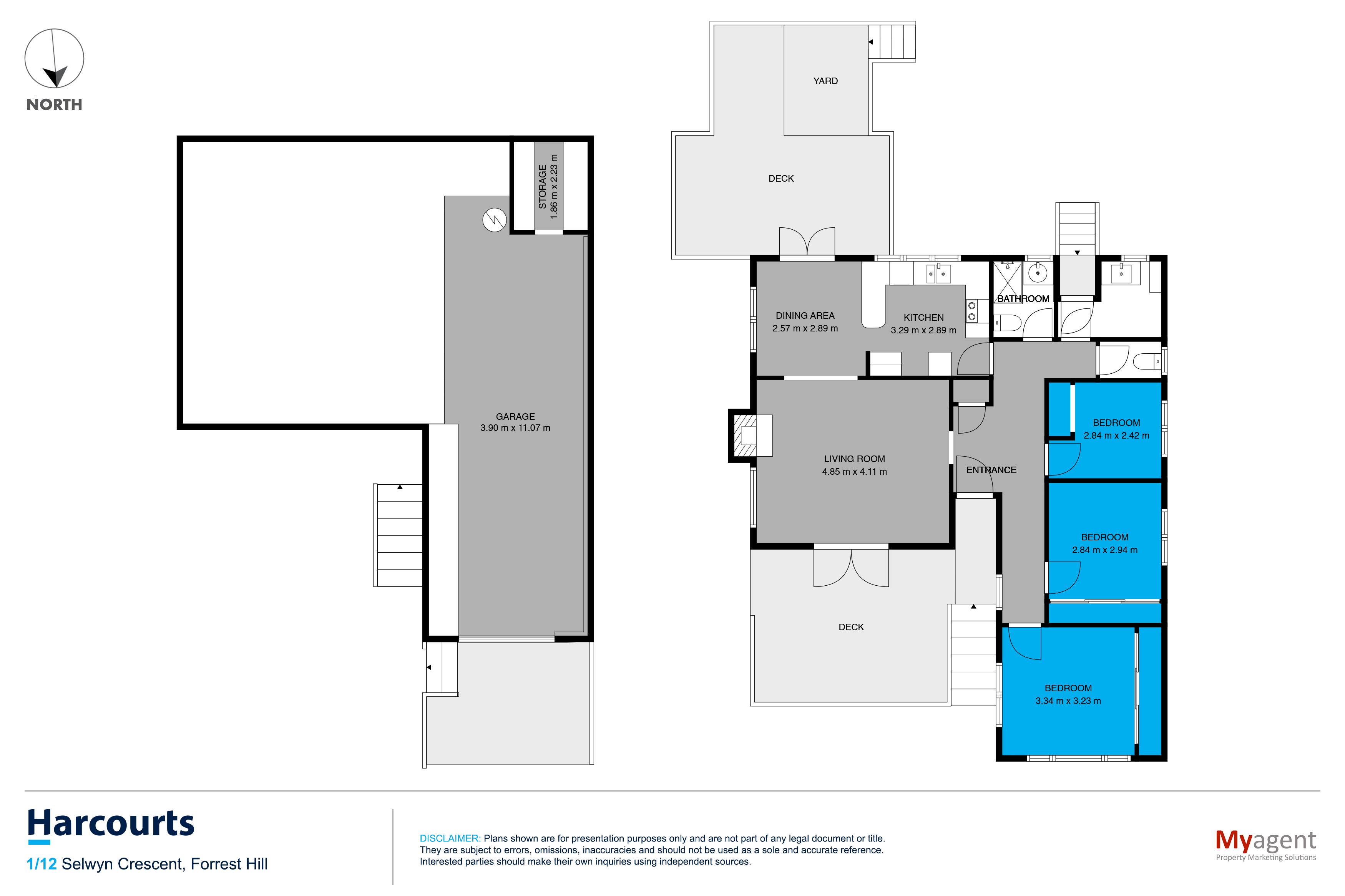
1/12 Selwyn Crescent, Forrest Hill, North Shore City

1960s Character Brought to Life

gavel

Auction

House
House
Bedroom
3
Bathroom
1
Floor area
120m2
Garage
2
On this page:

Open homes

Saturday
3:00pm - 3:30pm
14
Mar
Sunday
3:00pm - 3:30pm
15
Mar

Auction

Thursday
12:00pm
In Rooms, 128 Hurstmere Road, Takapuna
02
Apr

Property details

Listing # L39453384 | Listed on 11 March

Auction In Rooms Thursday 2nd April from 12:00pm (usp)

Vacant - Move in ready!

This charming 1960s weatherboard home perfectly combines classic character with modern comfort, offering a lifestyle of ease and enjoyment. Light-filled and inviting, the open-plan kitchen, dining, and lounge flow effortlessly through French doors onto not one, but two new sun-drenched decks, ideal for morning coffees, relaxed entertaining, or simply soaking up the sunshine.

Designed for family living, the home features three bedrooms and one bathroom, with a tandem garage providing abundant storage plus the convenience of off-street parking. A fully fenced section ensures a safe haven for children and pets to play freely.

Positioned in a prime Forrest Hill location, you are just moments from Milford Mall, local beaches, boutique shops, bustling cafes and restaurants, public transport and easy access to motorway links. Sitting within the catchment of the North Shore's most sought-after schools, including Campbells Bay, Forrest Hill, Takapuna Normal Intermediate, Wairau Intermediate, and the highly coveted double Westlake, this home is as practical as it is desirable.

This is a great opportunity for first home owners, young families, investors or those who enjoy the timeless character of a weatherboard home. Opportunities like this in such a coveted location are snapped up quickly - early viewing is highly recommended.

Features and Benefits

  • North facing, light & sunny
  • Weatherboard cladding
  • 3 Bedrooms and 1 bathroom
  • Tandem garage with tons of storage
  • Prime location - close to everything
  • Indoor-outdoor flow onto large(new) entertaining decks
  • Close proximity to Milford shops, Smales Farm, Milford Beach motorways, CBD and public transport
  • School zones - Westlake Boys and Girls, TNIS, Wairau Intermediate, Campbells Bay School and Forrest Hill School
Your notes
Add notes for your personal reference. This can only be seen by you.

Additional features

Other park
2 other parks
Water closet
1 Separate toilet
Rates
Rates: $3,830.31 per annum

Schools and childcare in the area

$
$
% p.a.
years
$0 per week
Contact the agent
Name  (required)
Email  (required)
Phone  (required)
I'd like to enquire about:
Your message
A young family with pets illustration