Residential
More from realestate.co.nz:
Agents News

2/8 Westwood Terrace, Saint Marys Bay, Auckland City

Luxury On So Many Levels

dollar

Deadline Sale

House
House
Bedroom
4
Bathroom
3
Floor area
375m2
Land area
400m2
Garage
2
On this page:

Open homes

No upcoming open homes

Deadline sale

Thursday
4:00pm
09
Apr

Property details

Listing # EPS34493 | Listed on 13 March

Bespoke luxury takes time - and opportunities of this calibre are rare.

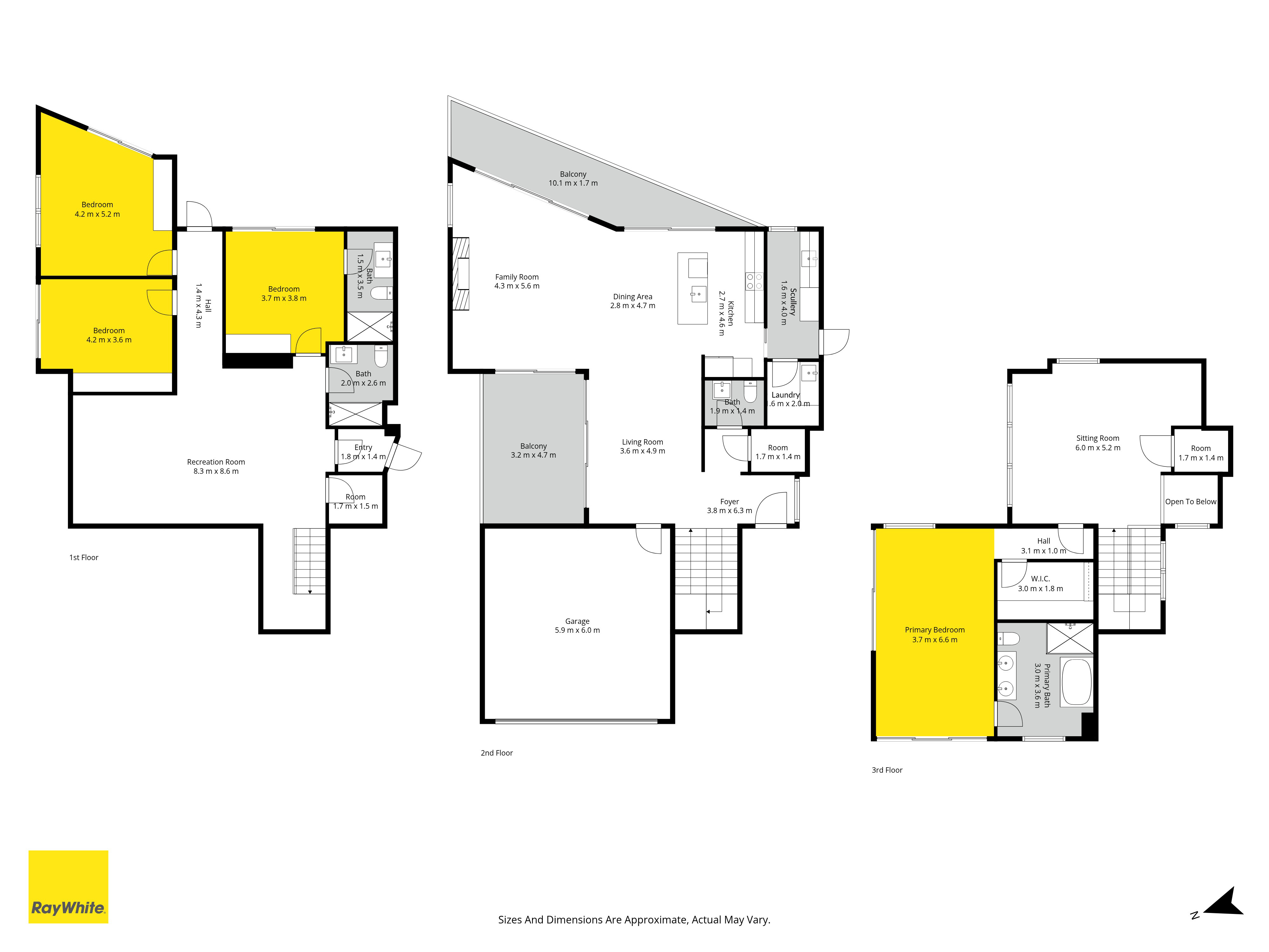
Tucked away in a quiet cul-de-sac, this exceptional new home in St Marys Bay offers a rare chance to secure a residence of enduring quality and architectural distinction.

Designed by the award-winning Jessop Architects, this standalone home showcases bold contemporary lines, timeless elegance, and interiors finished to an uncompromising standard.

Spanning three levels, the home celebrates both connection and retreat - open, light-filled spaces for entertaining and creating treasured memories, alongside private sanctuaries for rest and rejuvenation.

The entire top floor is dedicated to the master suite, bathed in natural light and capturing spectacular views of the Sky Tower and the city skyline.

The middle level is designed for living and entertaining, featuring generous open-plan spaces and seamless access from the double garage.

Below, the lower level provides the perfect separation for family or guests, with additional bedrooms and a dedicated media space.

This is a superb family residence, an expansive alternative to luxury apartment living, or your perfect lock-up-and-leave base in Auckland.

Perfectly positioned just moments from Jervois Road and only minutes to Ponsonby and the CBD, the lifestyle here is second to none.

Experience the difference this exceptional home can make to your life.

We invite you to visit this weekend, or contact us to arrange a private viewing at your convenience.

Your notes
Add notes for your personal reference. This can only be seen by you.

Schools and childcare in the area

$
$
% p.a.
years
$0 per week
Contact the agent
Name  (required)
Email  (required)
Phone  (required)
I'd like to enquire about:
Your message
A young family with pets illustration