Residential
More from realestate.co.nz:
Agents News

19 Scout Street, Rolleston, Selwyn

Brand New House & Land Package

dollar

Asking Price $699,000

House
House
Bedroom
3
Bathroom
2
Floor area
154m2
Land area
330m2
Garage
2
New build
New build
On this page:

Property details

Listing # HCG3872 | Listed on 13 March

Download the property files from the below link:
https://www.propertyfiles.co.nz/property/19ScoutStreet

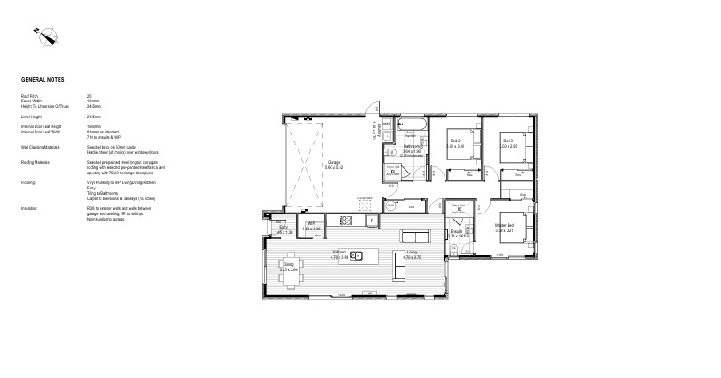
If you've been searching for an affordable brand-new home in Rolleston, this house and land package in the popular Falcons Landing subdivision presents an excellent opportunity. Offered at a fixed price of $699,000 with progressive payments during construction, this package provides price certainty and peace of mind while your new home is being built.

House & Land Package Features:

  • Progressive payments during construction
  • Approx. 154m² floor area
  • 330m² titled section in Falcons Landing
  • Three bedrooms including master with walk-in wardrobe and ensuite
  • Open-plan kitchen, dining and living area
  • Designer kitchen with island bench and walk-in pantry
  • Family bathroom with bath and separate shower
  • Double internal-access garage with laundry space
  • Built by respected local builder Que Homes Ltd

Secure your place in one of Rolleston's fastest-growing communities and enjoy the benefits of a brand-new home built for modern living.

This home will be built by Que Homes Ltd, a locally owned and family-run building company based in Selwyn. Established in 2012, Que Homes has completed hundreds of homes across Canterbury and is known for delivering well-designed, high-quality homes that suit modern Kiwi lifestyles.


Please be aware that this information may have been sourced from RPNZ/Property Smarts/Land Information New Zealand/Christchurch City Council/CERA and we have not been able to verify the accuracy of the same.

Your notes
Add notes for your personal reference. This can only be seen by you.

Additional features

Water closet
2 Separate toilets

Schools and childcare in the area

$
$
% p.a.
years
$0 per week
Contact the agent
Name  (required)
Email  (required)
Phone  (required)
I'd like to enquire about:
Your message
A young family with pets illustration