Residential
More from realestate.co.nz:
Agents News

11A Oates Road, Glen Eden, Waitakere City

First Time on the Market - True Glen Eden Treasure

gavel

Auction

House
House
Bedroom
3
Bathroom
1
Land area
1004m2
Covered park
2
On this page:

Open homes

Sunday
12:00pm - 12:30pm
22
Mar
Sunday
2:00pm - 2:30pm
22
Mar

Auction

Wednesday
6:00pm
Auction Centre, 746 New North Rd, Mt Albert (unless sold prior to Auction Date)
08
Apr

Property details

Listing # MLB61381 | Listed on 19 March

A home lovingly built and held by the same family since day one, now offered to the market for the very first time. Properties like this simply don't come along often.
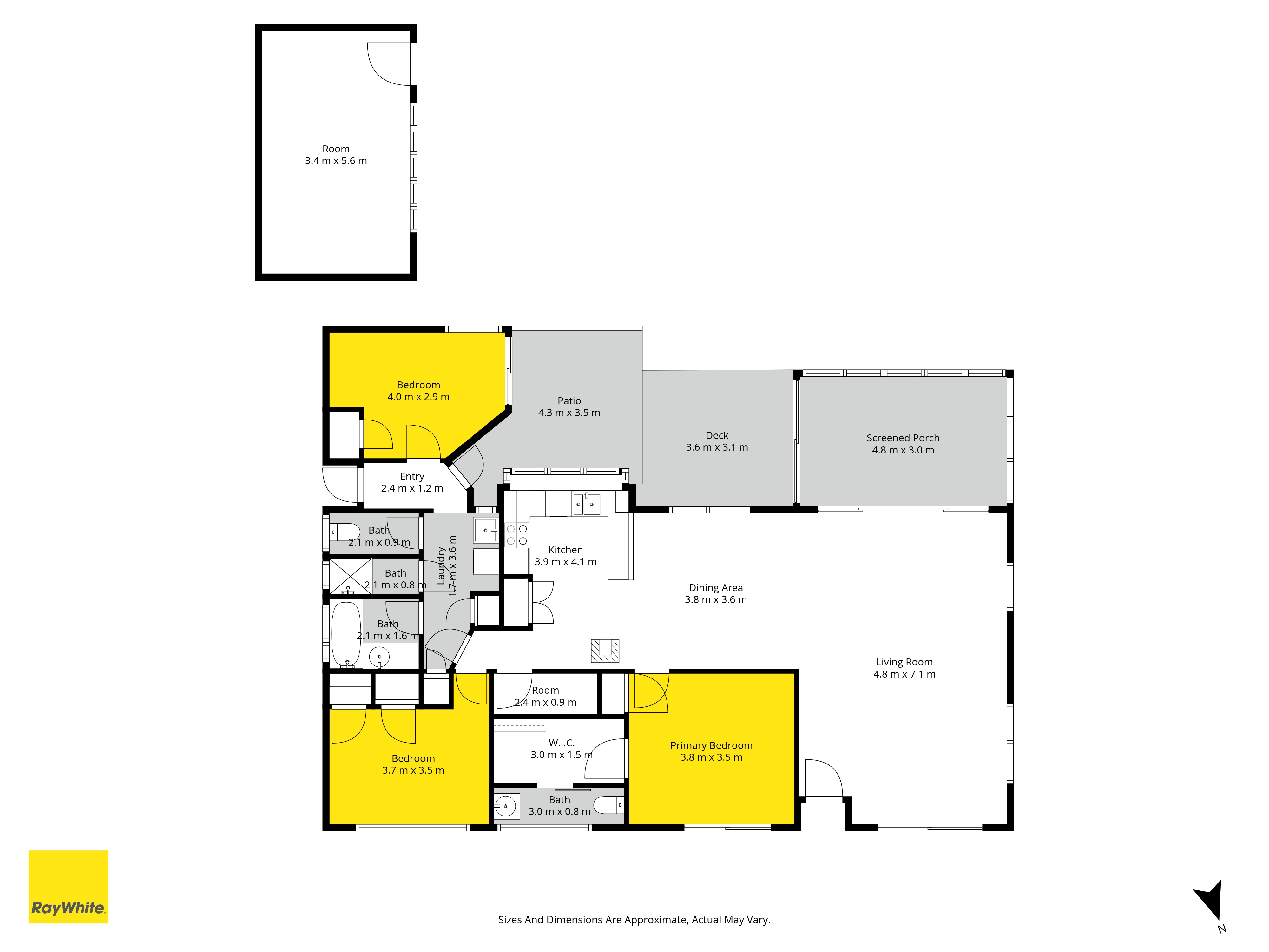
Set on a whopping 1,004sqm (more or less), this three bedroom, one and a half bathroom residence delivers beautifully proportioned living, with a central kitchen, dining and lounge area designed for connection, comfort and everyday ease.
The indoor-outdoor flow is seamless, opening to established grounds that feel like your own private sanctuary. Mature trees, lush landscaping and a stream bordering the property create a setting that is peaceful, private and incredibly special - backing onto expansive parkland.
This is the kind of home made for hosting, whether it's Christmas lunch on the lawn, milestone birthdays, or large family gatherings, there is space here to spread out, celebrate and create lifelong memories.
For those who need extra room, you'll love the dedicated man cave/workshop plus enormous storage options, ideal for hobbies, projects, tools, toys or simply keeping life organised. And while it feels worlds away, convenience is right at your doorstep. Situated directly opposite Glen Eden Shopping Centre and just a short walk to the train station, commuting to the city or grabbing your morning coffee couldn't be easier.

The balance here is exceptional:

  • 1,004sqm landholding (more or less)
  • Private, stream-side setting backing onto a park
  • Generous living with lovely indoor-outdoor flow
  • Workshop/man cave + abundant storage
  • First time ever offered to market

Homes that stay in one family for generations speak volumes. This isn't just a property.... It's a legacy!
A rare gem in the heart of Glen Eden, ready for its next chapter

AUCTION: 6pm, Wednesday 8 April 2026 at Auction Centre, 746 New North Road, Mount Albert (unless sold prior)


NOTE: The technical info provided (incl. the floor & section sizes) has been sourced from organisations such as RPNZ, Property Guru & Auckland Council; these are broad guides for general information only. They are solely intended to provide a general understanding of the subject matter & to help you assess whether you need more detailed information. We recommend you seek your own independent advice on everything material to your purchasing decision.

Your notes
Add notes for your personal reference. This can only be seen by you.

Additional features

Other park
2 other parks
Water closet
2 Separate toilets
Other Features: Refrigerator,Freezer,Washing Machine,Clothes Dryer,Microwave,Caravan

Schools and childcare in the area

$
$
% p.a.
years
$0 per week
Contact the agent
Name  (required)
Email  (required)
Phone  (required)
I'd like to enquire about:
Your message
A young family with pets illustration