Residential
More from realestate.co.nz:
Agents News

3 Bamberger Way, Rangiora, Waimakariri

Sunny and Quiet section - house and land package

dollar

$769,000

House
House
Bedroom
3
Bathroom
1
Floor area
131m2
Land area
435m2
Title type
Freehold
Garage
1
New build
New build
On this page:

Property details

Listing # 3Bamberger | Listed on 1 April

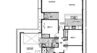
As you enter, you'll be greeted by an open plan living and dining area, with a light filled Kitchen. The three generous sized bedrooms provide plenty of space

for a growing family or overnight guests.

Guaranteed build time - 20 weeks!

Separate toilet and Laundry are an added bonus in this house plan.

Your notes
Add notes for your personal reference. This can only be seen by you.

Additional features

Water closet
1 Separate toilet
Double story
1 storey

Schools and childcare in the area

$
$
% p.a.
years
$0 per week
Contact the agent
Name  (required)
Email  (required)
Phone  (required)
I'd like to enquire about:
Your message
A young family with pets illustration