Residential
More from realestate.co.nz:
Agents News

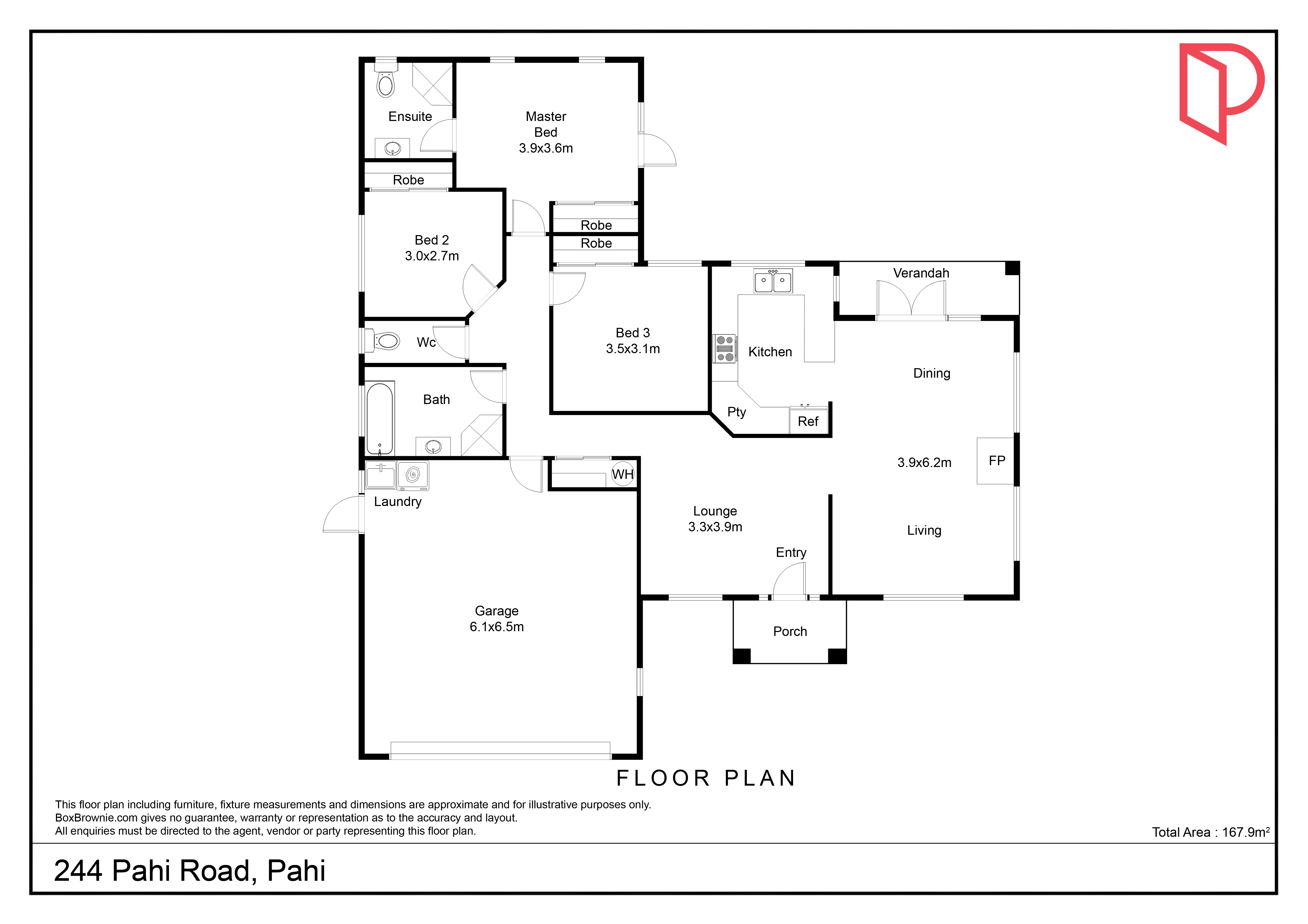
244 Pahi Road, Pahi, Kaipara

Beautiful Outlooks in Pahi

dollar

Deadline Sale

Section
Lifestyle property
Bedroom
3
Bathroom
2
Floor area
160m2
Land area
1.16ha
Garage
1
On this page:

Deadline sale

Thursday
12:00pm
30
Apr

Property details

Listing # L40052168 | Listed on 2 April

Set on a mostly flat 1.1ha section in the peaceful seaside community of Pahi, this solid brick and tile home offers space, views, and the perfect canvas to add your own creative flair. With beautiful rural outlooks and water views, the feel of this property is something truly special, peaceful, tranquil, and increasingly hard to find.

Inside, the home offers three bedrooms and two bathrooms, including a master with ensuite and outdoor access. The living area is warm and comfortable with a heat pump, and flows seamlessly to a large concreted outdoor area, perfect for outdoor dining, veggie gardens, or simply soaking up the quiet surroundings.

Positioned north facing, the home captures fantastic natural light, allowing you to enjoy both sunrises and sunsets across the surrounding landscape.

The 1.1ha of land provides plenty of room to create the lifestyle you've been dreaming of. Graze a few animals, plant an orchard, grow your own vegetables, or simply enjoy the open space. A dam adds able water source for stock.

Additional features include aluminium joinery, a hot water cylinder, and a double internal access garage for convenience.

Located in the friendly coastal community of Pahi and on the Otamatea High School bus route, this property offers the perfect balance of rural living and community connection.

A wonderful opportunity to secure a peaceful lifestyle property with space, views, and potential to make it your own.

For more property files, visit: https://propertyfiles.co.nz/property/SRP367

Your notes
Add notes for your personal reference. This can only be seen by you.

Additional features

Other park
6 other parks
Water closet
2 Separate toilets
Other Features: Alarm,Security Lights.

Schools and childcare in the area

$
$
% p.a.
years
$0 per week
Contact the agent
Name  (required)
Email  (required)
Phone  (required)
I'd like to enquire about:
Your message
A young family with pets illustration