Commercial
More from realestate.co.nz:
Agents News

Spacious Professional Offices

120 Main Street, Huntly

Office Premises
dollar

$29,000 Plus GST (if any)

Floor area
230m2
Land area
235m2
On this page:

Map

Property details

Listing # HY9269 | Listed on 9 April

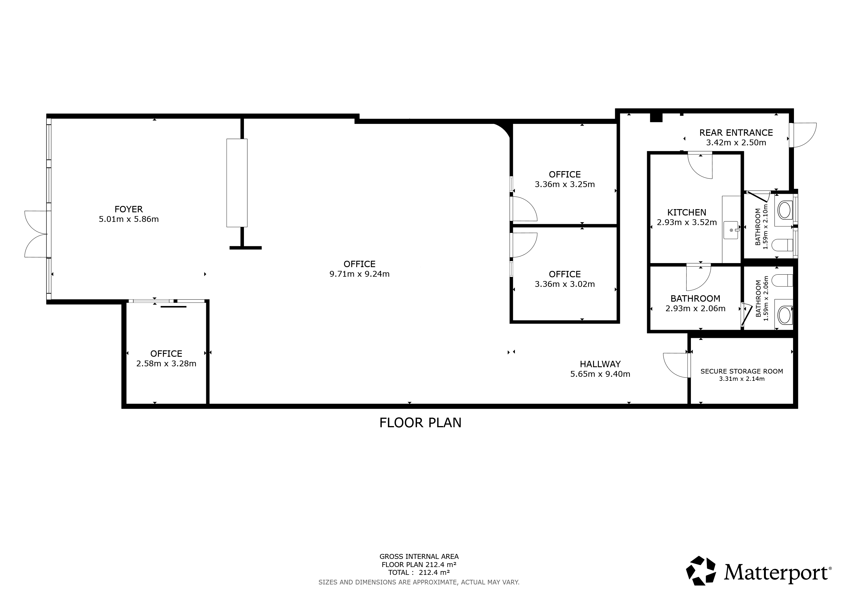
Available from 1 April 2026 these well located Main Street premises offer workspace options galore with approximately 230sqm of floor area. From the well lit reception area through to an open plan workspace, complimented by two private offices, storage area, staff kitchen/lunch room and bathrooms these premises are ready to go and ideal for someone looking for an office space with minimal set up required. The space is here, the scope is yours. Call Dallas to arrange a viewing.

Your notes
Add notes for your personal reference. This can only be seen by you.
Contact the agent
Name  (required)
Email  (required)
Phone  (required)
I'd like to enquire about:
Your message

By continuing, you agree to our terms of use and privacy policy.

A young family with pets illustration