201 Otahu Road is full of pleasant surprises and represents exceptional value and renovation potential!
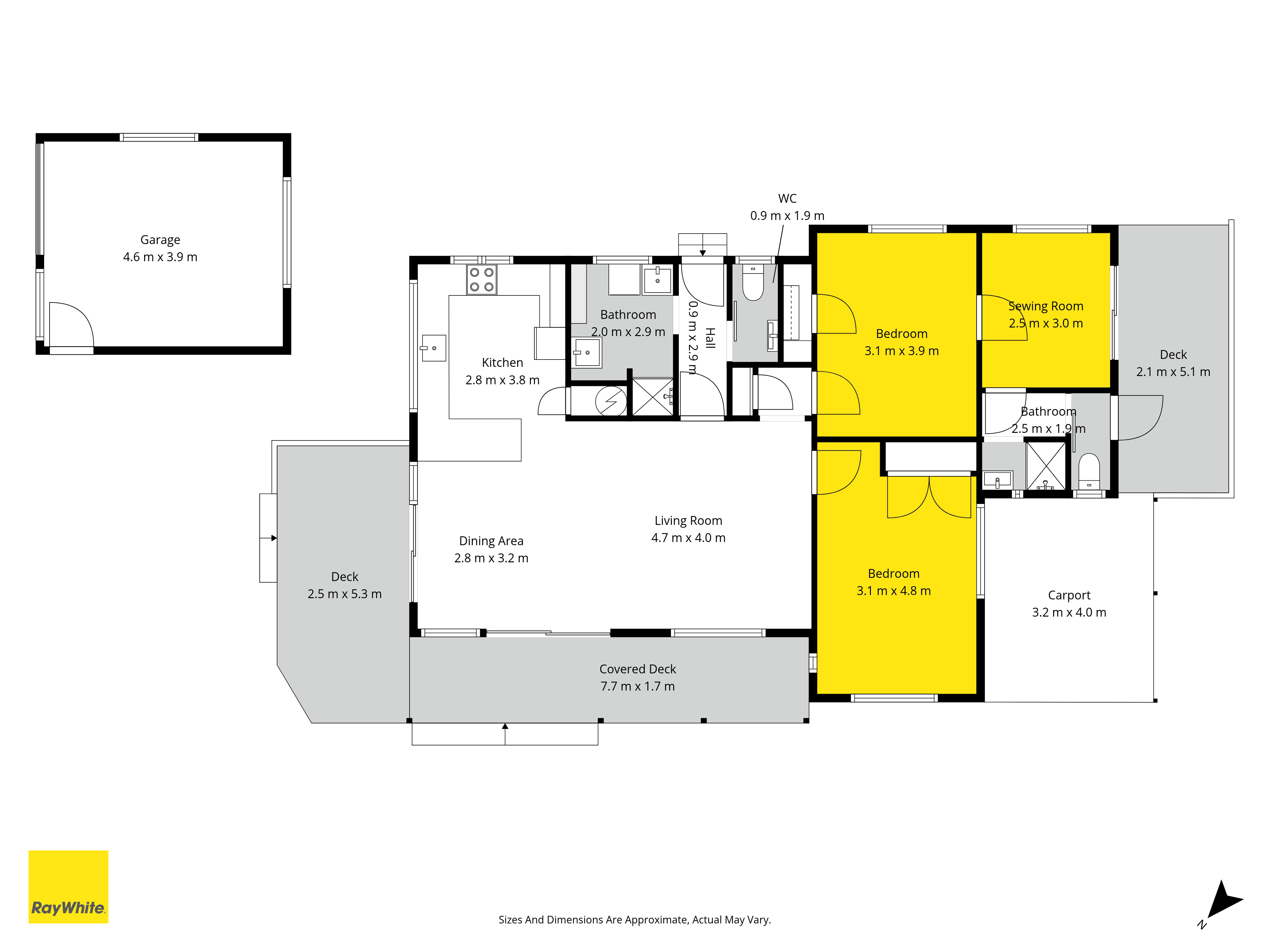
Positioned on the corner of Otahu Road and The Drive, this well-located property features dual driveways and sits on a generous 421sqm level section, fully fenced for privacy and security.
Recent upgrades include a new roof and spouting completed in 2022. The home offers a single garage with access from Otahu Road, along with a carport accessed from The Drive.
Inside, you'll find two well-proportioned bedrooms and two bathrooms, including an ensuite, plus a separate toilet for added convenience. An additional consented room, located behind the carport, offers both internal and external access-perfect as a space for children, guests, or a home office.
This versatile room also presents an opportunity to create a walk-in wardrobe, as it adjoins both the ensuite and second bedroom.
The generously sized kitchen flows effortlessly into the open-plan dining area and lounge, creating a warm and inviting hub for family living. Outside, the grassed area provides a safe and secure space for children and pets to enjoy.
Conveniently located close to the local school, community pool, Park Avenue Reserve, and the estuary, this property is ideal for families, retirees, or anyone seeking to embrace the relaxed Whangamata lifestyle.
Deadline Sale: Wed, 29th April 2026, 3pm (unless sold prior)
Contact Roxy or Reuben to arrange a viewing.
Roxy Pease 021 030 7589 or Reuben van Dorsten 021 104 6060