Sold
More from realestate.co.nz:
Agents News
Not listed

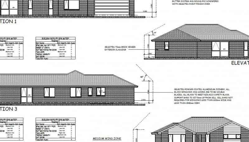
78 Tramway Road, Ruakura

Automated estimate

dollar

$889K

estimate

Estimate updated on 29/10/2025

Bedroom
4
Bathroom
2
Ensuite
1
Floor area
174m2
Land area
443m2
Garage
1
Save this property

Get instant updates

  • Latest price estimate and CV changes
  • If if hits the market for sale or rent

What you can expect to pay for this property

Powered by: The Real Estate Institute of New Zealand (REINZ)

The estimated sale price range

Price icon

Low

$855K

Price icon Price icon

Med

$889K

Price icon Price icon Price icon

High

$927K

Capital value

Capital Valuation price icon

Updated 01/09/24

$880K

Estimated sale price over the last 12 months

78 Tramway Road
Suburb median

These estimates are computer generated and are guides only. For more information on this property, please contact an agent.

Frequently asked questions

Capital value breakdown

$880,000

Valuation date: 1 Sep 2024
Land value
$365,000
Improvement value
$515,000

Interested in this property?

Save it to get notifications when the valuation changes or it hits the market.

A young family with pets illustration