Residential
More from realestate.co.nz:
Agents News

131 Mayfair Avenue, Whangamata, Thames-Coromandel

Eight bedrooms priced below RV

dollar

$1,750,000

House
House
Bedroom
8
Bathroom
5
Floor area
368m2
Land area
684m2
Title type
Freehold
Garage
2
On this page:

Open homes

Saturday
9:00am - 9:30am
13
Dec

Property details

Listing # 2221501 | Listed on 13 October

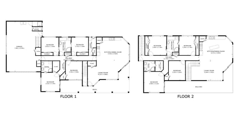
Here’s an opportunity that doesn’t come along often. 131 Mayfair Avenue offers two exceptionally large four-bedroom homes on one freehold title, providing enormous flexibility for family, friends, or future income potential. With the added bonus of a converted garage, this property can comfortably accommodate a crowd, ideal for extended families, multiple owners, or even community housing options.

Both homes are solidly constructed, bright, and spacious, with generous open-plan living areas, modern kitchens, and seamless flow to outdoor spaces. Built to stand the test of time, the layout and finishes speak to durability and comfort, making it equally suitable as a permanent residence or a substantial holiday base.

Positioned in a highly convenient location, you’re just a short stroll to town, New World, Bunnings, the local school, and the community swimming pool. Everything you need is close at hand, yet you’ll enjoy the peace of a well-established neighbourhood.

For those seeking space, strength, and versatility, this is a property that truly delivers.

Opportunities like this don’t last. Contact us today and experience the exceptional lifestyle that this truly unique property offers.
You will not regret your decision to buy as it is an investment in your wellbeing and a new start to create lasting family memories.

Your notes
Add notes for your personal reference. This can only be seen by you.

Additional features

Style: Contemporary
Roofing: Corrugated iron
Lot Features: Level

Schools and childcare in the area

$
$
% p.a.
years
$0 per week
Contact the agent
Name  (required)
Email  (required)
Phone  (required)
I'd like to enquire about:
Your message
A young family with pets illustration