Commercial
mobile navigation
Search for:
Residential
Rural
Commercial
Business
For sellers:
Market insights
Recent sales
Price estimates
Find an agent
News for sellers
More from realestate.co.nz:
Agents
News
Residential
Rural
Commercial
Business
For sellers
For sellers
Agents
News
Buy
Lease
Search
Heidelberg, Invercargill City
Property type
Price
Filters
Include neighbouring suburbs
Search by region > district > suburb
Include neighbouring suburbs
1 result in Heidelberg, Invercargill City
Commercial Properties for Sale
Sort icon
Sort by:
Featured
Map view
Save search
Loading interface...
Loading interface...
Loading interface...
View More
Share this listing
Save this listing
Listed 3 years ago
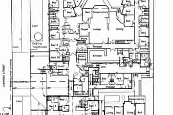
Looking For Those Elusive Returns?
1111m
2
4045m
2
Hotel Motel Leisure
Negotiation
1
1 - 1 of 1 items
All Commercial Sale Listings
Southland
Invercargill City
Heidelberg
Nearby suburbs
Heidelberg
(1)
Property types
Hotel Motel & Leisure
(1)
Categories
Residential for rent
(3)
Save search